Block window system heroal W 72 i

heroal W 72 i

The complete block window system for every application

The block window system heroal W 72 i stands for a wide range of architectural designs, made possible through subtle, slim face widths. Sash profiles are not only available with push rod fitting grooves (SBN) and plastic fitting grooves (KBN), but also as interior and exterior glazing, which makes a flexible fabrication and installation possible. The minimum face width for this system is just 81 mm. heroal W 72 i combines a maximum proportion of glass with a modern design without a visible sash, and at the same time offers a high thermal efficiency. It stands for versatile uses, for example as insert element in a curtain wall. The standard heroal W 72 i system with a face width of 87/91 mm achieves a Uf value of 1.5/1.7 W/m²K, and can be further enhanced or extended. System extensions are heroal W 72 i (w/o PU foam – reduction in U value through the elimination of the profile sealing zone and the use of alternative insulating material) and heroal W 72 i UD (Universal Design – block French doors with a threshold height < 20 mm).

  • high thermal insulation with low design depth
  • proven performance features, combined with heroal WF and heroal WF EM fittings
  • creation of interior and exterior glazing possible

Available as a heroal plus package.

    Product Details

  • Processing advantages & product details

    Innovative complete solution for heroal window systems


    The heroal plus accessory package for the heroal W 72 window system (heroal W 72 plus) is a high-quality and flexible solution for efficient window construction projects. With its modular design, heroal plus consists of a heroa

    Innovative complete solution for heroal window systems


    The heroal plus accessory package for the heroal W 72 window system (heroal W 72 plus) is a high-quality and flexible solution for efficient window construction projects. With its modular design, heroal plus consists of a heroal VS Z textile screen, fall protection, an integrated insect screen and a window sill, providing a complete solution from a single source for all trades. All components are available individually, in different combinations or for retrofitting and can be configured and ordered in the heroal Business Configurator with optimised Orgadata Logikal interface. The customised system components ensure maximum efficiency and reliability in production and installation. Thanks to the colour and surface uniformity of all aluminium profiles and a minimum of visible screw connections, heroal plus meets the highest design requirements.

  • Brochures & test certificates

  • Dimensions & drawings

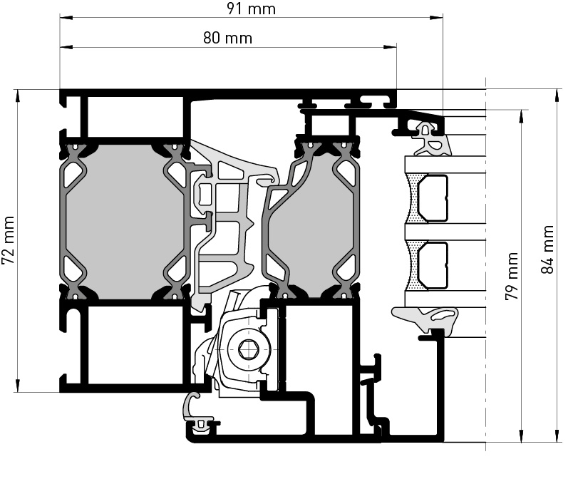
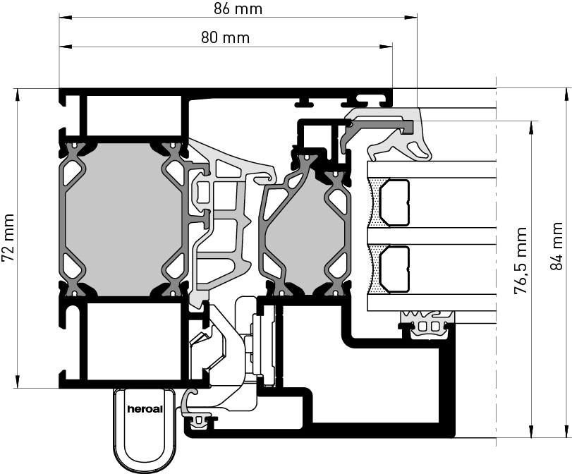
    Profile depth [mm]

    Frame profile
    72
    Leaf profile
    72
    Bar profile
    76,5 / 79

    Visible profile width [mm]

    Frame profile
    70 - 120
    Leaf profile
    verdeckt
    Sash/frame combination
    77 / 81
    Bar profile
    114 - 244

    Casement profi e variations

    Push rod fitting groove [SBN]
    Plastic fitting groove [KBN]

    System properties

    Glass filling strength [mm]
    48
    Max. leaf weight [kg]
    300
    Max. leaf heights [mm]
    2.400
    Max. leaf widths [mm]
    1.200

    Sectional Drawings

  • Performance characteristics

    RC 2 Resistance to burglary
    2 Continuous function
    9A Resistance to driving rain
    5 Impact resistance
    > 0,83* Heat insulation (Uw in W/m2K) / Profile width [mm]
    1,5/97 Thermal insulation [Uf in W/m2K] / Profile width [mm]
    4 Mechanical resistance
    1 Operating forces
    4 Air permeability
    1 Load-bearing capacity of safety equipment
    1-5 Soundproofing class
    C5/B5 Wind resistance
  • CAD & BIM data

  • Tender texts

References heroal W 72 i

Extras

Explore the heroal Communicator now


The versatile and convenient functions of the heroal Communicator optimally support your work and help you to save time. Ask for your personal access code now, and benefit from updated documents and current product information as well as heroal news and personal support.

Join us! Become a heroal partner

Your customers will know about your commitment to quality thanks to the “powered by heroal” label. Take advantage of targeted support for your company. As our partner, you will become an important part of the heroal brand, which means maximum support for your business. You will be able to purchase products from the entire heroal range and not just single components. You will therefore benefit from the highest level of system reliability.

  • Individual system and software training
  • First-class technical support
  • Individual marketing support, including website building
  • Personal support by responsible field sales team

Would you like a non-binding product consultation?

Request product consultation >

Would you like an insight into our production process?

Sign up for a factory tour >

Would you like to attend heroal training?

Enquire about training >