Front-mounted roller shutter box heroal FME HC
heroal FME HC in combination with heroal VS Z sun protection solution

heroal FME HC

Extruded surface-mounted roller shutter box with rounded look

Elegant design in combination with more security: The extruded, extremely stable rounded panel heroal FME HC can be harmoniously integrated into the look of the facade, or, in a striking colour, set unique accentuations. Clip-on, rounded attachment profiles for the guide rails emphasise the rounded design even more. If required, the front panel can be removed completely, providing for a large inspection opening.

  • Surface-mounted box ideally suited for a retrofit
  • Extruded and extremely stable, for increased burglary protection
  • Wide variety of colours and design

    Product Details

  • Processing advantages & product details

    Sustainability

    The heroal FME HC, made from recycled aluminium, stands out for its high material stability. It provides for perfect box stability thanks to walls made from high-quality aluminium alloys, and the use of the special heroal connection technology.

    Design

    The heroal FME HC stands out for its aesthetically appealing rounded look. The highly weather resistant heroal hwr powder coating provides for a perfect colour uniformity with heroal systems for windows, doors, sliding doors, curtain walls and roofings. In addition to more than 500 RAL, DB and VEKA colours, it is also available in the exclusive Les Couleurs® Le Corbusier® shades. Different gloss levels and structures perfectly accentuate surfaces coated in RAL colours. With the innovative surface refinement heroal SD, the surfaces of extruded parts are given impressive wood, rust or concrete looks. Reflective metallic looks can be created with Eloxal coatings.

    Comfort

    Special guide rails provide for the integration of insect screens into the panel box system. The available space is perfectly used, and any additional installation effort for screens is eliminated.

  • Brochures & test certificates

    Test certificates
    Test certificate
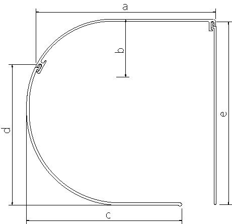
  • Dimensions & drawings

    Number of panel parts
    3
    Number of box sizes
    5
    Sizes from - to
    137 - 205

    Sectional Drawings

  • Performance characteristics

    SL*** Resistance to burglary
    7** Hail class

    *** SL, the roller shutter slat satisfies technical directive TR 111 from the BVRS (German federal association for manufacturers of roller shutters and sun protection)

  • CAD & BIM data

  • Tender texts

Extras

Explore the heroal Communicator now


The versatile and convenient functions of the heroal Communicator optimally support your work and help you to save time. Ask for your personal access code now, and benefit from updated documents and current product information as well as heroal news and personal support.

Join us! Become a heroal partner

Your customers will know about your commitment to quality thanks to the “powered by heroal” label. Take advantage of targeted support for your company. As our partner, you will become an important part of the heroal brand, which means maximum support for your business. You will be able to purchase products from the entire heroal range and not just single components. You will therefore benefit from the highest level of system reliability.

  • Individual system and software training
  • First-class technical support
  • Individual marketing support, including website building
  • Personal support by responsible field sales team

Would you like a non-binding product consultation?

Request product consultation >

Would you like an insight into our production process?

Sign up for a factory tour >

Would you like to attend heroal training?

Enquire about training >