Concealed roller shutter box heroal FMB 45°

heroal FMB 45°

Extruded plaster-base roller shutter box with 45° chamfer

The plaster-base panel system heroal FMB 45° creates striking looks for your facade and lets in more natural daylight. Plaster-base profiles for different applications are available. Six different box sizes and the complete colour range for the design of the extruded visible panel provide for a wide range of versatile options for plaster-base installations.

  • Striking looks and more natural daylight streaming into the building
  • For plaster-base installations
  • Wide variety of colours and designs

    Product Details

  • Processing advantages & product details

    Sustainability

    The heroal FMB 45°, made from recycled aluminium, stands out for its high material stability. It provides for perfect security thanks to walls made from high-quality aluminium alloys, and the use of the special heroal connection technology. A wide range of plaster-base profiles ensures the reliable installation in all standard composite heat insulation systems.

    Design

    In addition to more than 500 RAL, DB and VEKA colours, the highly weather resistant heroal hwr powder coating is also available in the exclusive Les Couleurs® Le Corbusier® shades. Different gloss levels and structures perfectly accentuate surfaces coated in RAL colours. With the innovative surface refinement heroal SD, the surfaces of extruded parts are given impressive wood, rust or concrete looks. Reflective metallic looks can be created with Eloxal coatings. For building shells that appear to be cast from the same mould, heroal 2-layer thick coatings and heroal hwr powder coatings for extruded elements are perfectly matched - for a perfect colour uniformity with heroal systems for windows, doors, sliding doors, curtain walls and roofings.

    Comfort

    Special guide rails provide for the integration of insect screens into the panel box system. The available space is perfectly used, and any additional installation effort for screens is eliminated.

  • Brochures & test certificates

    Test certificates
    Test certificate
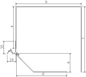
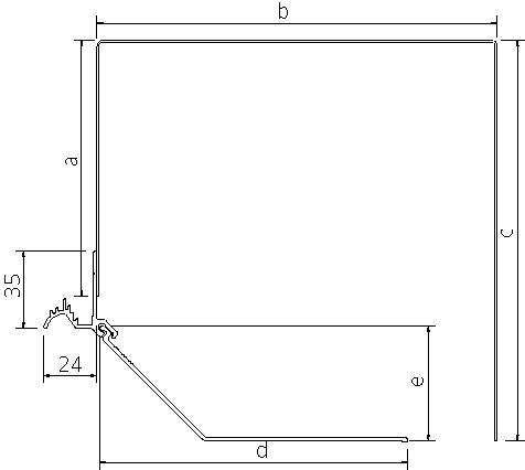
  • Dimensions & drawings

    Number of panel parts
    2
    Number of box sizes
    6
    Sizes from - to
    125 - 205

    Sectional Drawings

  • CAD & BIM data

  • Tender texts

Extras

Explore the heroal Communicator now


The versatile and convenient functions of the heroal Communicator optimally support your work and help you to save time. Ask for your personal access code now, and benefit from updated documents and current product information as well as heroal news and personal support.

Join us! Become a heroal partner

Your customers will know about your commitment to quality thanks to the “powered by heroal” label. Take advantage of targeted support for your company. As our partner, you will become an important part of the heroal brand, which means maximum support for your business. You will be able to purchase products from the entire heroal range and not just single components. You will therefore benefit from the highest level of system reliability.

  • Individual system and software training
  • First-class technical support
  • Individual marketing support, including website building
  • Personal support by responsible field sales team

Would you like a non-binding product consultation?

Request product consultation >

Would you like an insight into our production process?

Sign up for a factory tour >

Would you like to attend heroal training?

Enquire about training >