Venstersysteem heroal W 72
Venstersysteem heroal W 72
Gebruik van heroal W 72 in de patio
Gebruik van heroal W 72 in het Golfhotel Zillertal
Gebruik van heroal W 72 als terrasdeur op woongebouwen in Oldrichov
Gebruik van heroal W 72 in de muziekschool van Monheim
Toepassing van heroal W 72 als raamgevel

heroal W 72

Het complete raamsysteem voor elk toepassingsgebied

Het heroal W 72-raamsysteem biedt met zijn veelzijdige varianten de grootst mogelijke vormgevingsvrijheid - van planning tot productie. Naast aanvullende constructies, zoals de ventilatieklep heroal W 72 VF en PSK-elementen, biedt het systeem ook de perfecte integratie met het heroal D 72-deursysteem. heroal W 72 maakt ook de eenvoudige realisatie van gevels voor trappenhuizen mogelijk. De vleugelprofielen zijn verkrijgbaar met SBN- en KBN-groef, wat een flexibele verwerking mogelijk maakt. Dankzij de minimale aanzichtbreedte van slechts 90 mm kunnen ramen met een hoog glasaandeel worden gerealiseerd. Met een lage Uf-waarde van 1,3 W/m²K bij een aanzichtbreedte van 120 mm vormt het heroal W 72-raamsysteem de basis voor verdere uitbreidingen. Deze systeemuitbreidingen zijn heroal W 72 (zonder PU-schuim - verminderde U-waarde door wijziging van de profielisolatiezone en het gebruik van andere isolatiematerialen), heroal W 72 HI (Highly Insulated - verbeterde U-waarde door het gebruik van andere afdichtings- en isolatiematerialen) en heroal W 72 UD (Universal Design - raamdeuren met dorpelhoogte < 20 mm).

  • hoge warmte-isolatie bij geringe bouwdiepte
  • bewezen prestatiekenmerken met heroal WF- en heroal WF EM-beslag
  • uitgebreid assortiment voor elke toepassing

Verkrijgbaar als heroal plus pakket.

    Productdetails

  • Voordelen van de verwerking & productgegevens

    Innovatieve totaaloplossing voor heroal raamsystemen


    Het heroal plus toebehorenpakket voor het heroal W 72 raamsysteem (heroal W 72 plus) is een hoogwaardige en flexibele oplossing voor efficiënte raambouwprojecten. Het modulair opgebouwde heroal plus bestaat uit een heroal VS Z te

    Innovatieve totaaloplossing voor heroal raamsystemen


    Het heroal plus toebehorenpakket voor het heroal W 72 raamsysteem (heroal W 72 plus) is een hoogwaardige en flexibele oplossing voor efficiënte raambouwprojecten. Het modulair opgebouwde heroal plus bestaat uit een heroal VS Z textielhor, valbeveiliging, een geïntegreerde insectenhor en een vensterbank en biedt zo een complete oplossing uit één hand voor alle vakmensen. Alle componenten zijn afzonderlijk, in verschillende combinaties of voor montage achteraf verkrijgbaar en kunnen in de heroal Business Configurator met geoptimaliseerde Forterro Logikal-interface worden geconfigureerd en besteld. De op maat gemaakte systeemcomponenten zorgen ook voor maximale efficiëntie en betrouwbaarheid in productie en installatie. Dankzij de kleur- en oppervlakte-uniformiteit van alle aluminiumprofielen en een minimum aan zichtbare schroefverbindingen voldoet heroal plus aan de hoogste designeisen.

  • Brochures & testcertificaten

  • Afmetingen & tekeningen

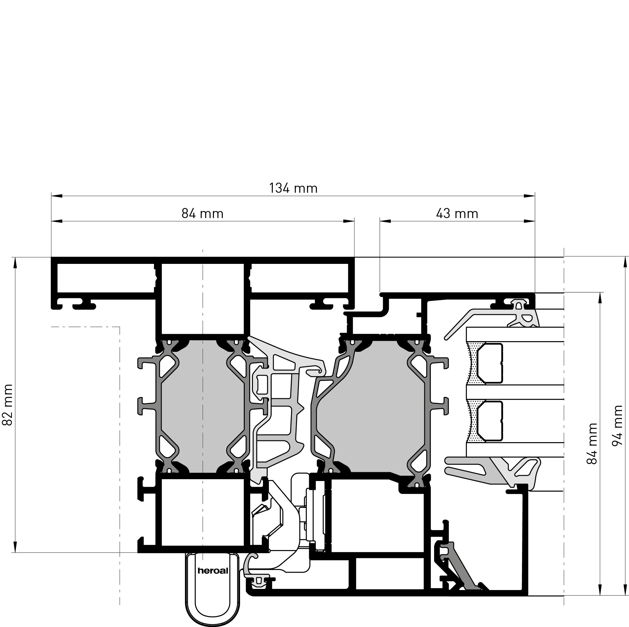
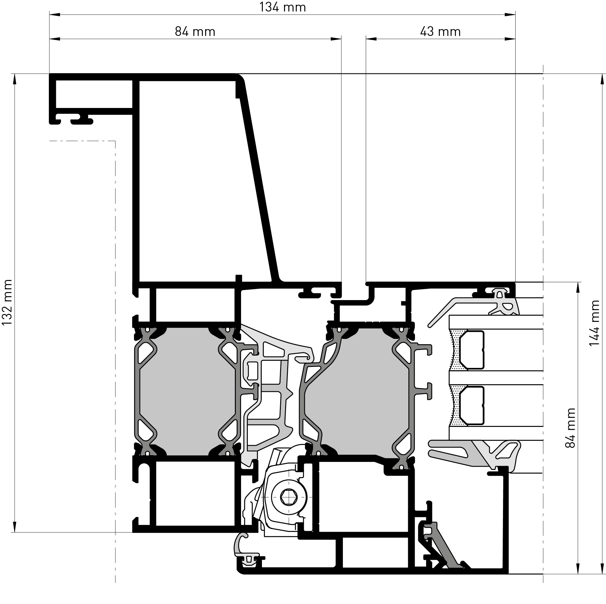
    Profielinbouwdiepte [mm]

    Kozijnprofielen
    72
    Vleugelprofielen
    84
    Roedenprofielen
    72

    Profielaanzichtbreedte [mm]

    Kozijnprofielen
    50 - 250
    Vleugelprofielen
    33 - 67
    Vleugel-kozijncombinatie
    90
    Roedenprofielen
    74 - 254

    Varianten vleugelprofie en

    Beslagsleuf schuifstang [SBN]
    Kunststof beslagsleuf [KBN]

    Systeemeigenschappen

    Glas-/vullingdikte [mm]
    66
    Max. vleugelgewichten [kg]
    300
    Max. vleugelhoogten [mm]
    2.800
    Max. vleugelbreedten [mm]
    1.600

    Doorsnedetekeningen

  • Prestatiekenmerken

    RC 3 Inbraakwerendheid
    3 Duurfunctie
    9A Slagregendichtheid
    3 Stootvastheid
    > 0,84* Warmte-isolatie (Uw in W/m2K)
    1,3/120 Warmte-isolatie (Uf in W/m2K)
    4 Mechanische sterkte
    1 Bedieningskrachten
    4 Luchtdoorlatendheid
    1 Draagvermogen van veiligheidsvoorzieningen
    1-5 Geluidsisolatieklasse
    C5/B5 Weerstand tegen windbelasting
  • CAD- & BIM-gegevens

  • Aanbestedingsteksten

Referenties heroal W 72

Extra's

Ontdek nu de heroal Communicator


De veelzijdige en gebruiksvriendelijke functies van de heroal Communicator ondersteunen uw werk optimaal en besparen tijd. Vraag nu uw persoonlijke toegang aan en profiteer van de meest actuele documenten en productinformatie, nieuws rondom heroal en persoonlijke ondersteuning.

Doe mee! - Word handelspartner van heroal

Met het label “powered by heroal” toont u uw klanten uw kwaliteitsbewustzijn. Profiteer van een doelgerichte ondersteuning van uw bedrijf. Als onze partner vormt u een belangrijk onderdeel van het merk heroal - dat houdt in een maximale opbrengst voor uw bedrijf. U koopt uit het volledige assortiment van heroal en niet zomaar losse onderdelen. Zo maakt u ook gebruik van de beste systeemzekerheid.

  • Individuele systeem- en softwaretrainingen
  • Eersteklas technische ondersteuning
  • Indivduele marketingondersteuning
  • Persoonlijke begeleiding door ervaren en geschoolde buitendienst

Wenst u een vrijblijvend productadvies?

Productadvies aanvragen >

Wilt u een kijkje nemen bij onze productie?

Registreer om te bekijken >

Heeft u interesse voor een training bij heroal?

Training aanvragen >