heroal window system W 77
Use of the clamp-on heroal VS Z EM with heroal W 77
heroal WF EM with the W 77 window system
Use of heroal W 77 as a window front

heroal W 77

The window system for today and tomorrow

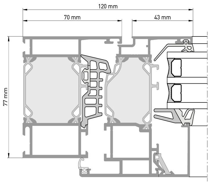
Through the smart combination of selected materials and geometries, the heroal W 77 window system achieves Uw values up to passive house suitability with a design depth of only 77 mm. Sash profiles are available with push rod fitting grooves (SBN) and plastic fitting grooves (KBN), which makes a flexible fabrication possible. Windows with a high proportion of glass can be created thanks to the minimum face width of just 90 mm. The standard window system heroal W 77 with a face width of 120 mm achieves a Uf value of 1.1 W/m²K, and can be further enhanced or extended. Extensions are heroal W 77 HI (Highly Insulated - enhancement of the U value through the use of different sealings and insulations; Uf value of 0,95 W/m²K), heroal W 77 PH (Passive House - U-value at passive house level with a face width of 180 mm; Uf value of 0,78 W/m²K) and heroal W 77 UD (Universal Design - French doors with a threshold height < 20 mm). heroal W 77 also allows for the simple implementation of façades for stairwells.

  • High thermal insulation with low design depth
  • Proven performance features, combined with heroal WF and heroal WF EM fittings
  • Great variety of colours and designs

Available as a heroal plus package.

    Product Details

  • Processing advantages & product details

    Innovative complete solution for heroal window systems


    The heroal plus accessory package for the heroal W 77 window system (heroal W 77 plus) is a high-quality and flexible solution for efficient window construction projects. With its modular design, heroal plus consists of a heroa

    Innovative complete solution for heroal window systems


    The heroal plus accessory package for the heroal W 77 window system (heroal W 77 plus) is a high-quality and flexible solution for efficient window construction projects. With its modular design, heroal plus consists of a heroal VS Z textile screen, fall protection, an integrated insect screen and a window sill, providing a complete solution from a single source for all trades. All components are available individually, in different combinations or for retrofitting and can be configured and ordered in the heroal Business Configurator with optimised Forterro Logikal interface. The customised system components ensure maximum efficiency and reliability in production and installation. Thanks to the colour and surface uniformity of all aluminium profiles and a minimum of visible screw connections, heroal plus meets the highest design requirements.

  • Brochures & test certificates

  • Dimensions & drawings

    Profile depth [mm]

    Frame profile
    77
    Leaf profile
    89
    Bar profile
    77

    Visible profile width [mm]

    Frame profile
    50 - 250
    Leaf profile
    33 - 67
    Sash/frame combination
    90
    Bar profile
    74 - 254

    System properties

    Glass filling strength [mm]
    58
    Max. leaf weight [kg]
    300
    Max. leaf heights [mm]
    2.800

    Sectional Drawings

  • CAD & BIM data

  • Tender texts

Extras

Tailored support for architects

heroal architectural consultants can provide you all-encompassing consulting. heroal’s technical support deals with all the questions you may have concerning windows, doors and curtain walls as well as roller shutters, sun protection and roller doors -if required, also on-site of your building project. Are you new to heroal? Get in touch with us today!

All information in the heroal Communicator

Our Communicator, heroal’s online workplace, always makes the current documentation available to you. Via the Communicator-App, you can get in touch with your architect’s consultant immediately.

  • Download test documents
  • Find product information
  • Readily available CAD data instantly
  • Download BIM data
  • Latest projects for reference

Communicator registration > Communicator log-in >