Window system heroal W 77 HI
heroal W 77 window system in burglary protection class RC 4
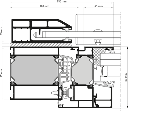
heroal W 77 HI with window fitting heroal WF EM

heroal W 77 HI

A window system to meet present and future needs

An intelligent combination of geometry and material enables the new heroal W 77 window system to achieve a Uf value of 0.95­W/m²K (view width: 120 mm) at passive-house level, with an installation depth of just 77 mm. With this development, heroal has designed the thermally separated aluminium window in such a way that it not only meets present demands stated by the 2016 German Energy Savings Regulation (Energieeinsparverordnung, EnEV) over the long term, but also fulfils future requirements for “nearly zero-energy buildings”.

    Product Details

  • Brochures & test certificates

  • Dimensions & drawings

    Profile depth [mm]

    Frame profile
    77
    Leaf profile
    89
    Bar profile
    77

    Visible profile width [mm]

    Frame profile
    50 - 250
    Leaf profile
    33 - 67
    Sash/frame combination
    90
    Bar profile
    74 - 254

    Casement profi e variations

    Push rod fitting groove [SBN]
    Plastic fitting groove [KBN]

    System properties

    Glass filling strength [mm]
    66
    Max. leaf weight [kg]
    300
    Max. leaf heights [mm]
    2.800
    Max. leaf widths [mm]
    1.600

    Sectional Drawings

  • Performance characteristics

    RC 3 Resistance to burglary
    3 Continuous function
    9A Resistance to driving rain
    5 Impact resistance
    > 0,72 Heat insulation (Uw in W/m2K) / Profile width [mm]
    0,95/120 Thermal insulation [Uf in W/m2K] / Profile width [mm]
    4 Mechanical resistance
    1 Operating forces
    4 Air permeability
    1 Load-bearing capacity of safety equipment
    1-5 Soundproofing class
    C5/B5 Wind resistance

    * Uw value in accordance with DIN EN ISO 10077-1; calculated using an element size of 1,230 x 1,480 mm; standard visible profile width

    !) Application-specific special approvals for oversized elements from heroal

  • CAD & BIM data

  • Tender texts

References heroal W 77 HI

Extras

Tailored support for architects

heroal architectural consultants can provide you all-encompassing consulting. heroal’s technical support deals with all the questions you may have concerning windows, doors and curtain walls as well as roller shutters, sun protection and roller doors -if required, also on-site of your building project. Are you new to heroal? Get in touch with us today!

All information in the heroal Communicator

Our Communicator, heroal’s online workplace, always makes the current documentation available to you. Via the Communicator-App, you can get in touch with your architect’s consultant immediately.

  • Download test documents
  • Find product information
  • Readily available CAD data instantly
  • Download BIM data
  • Latest projects for reference

Communicator registration > Communicator log-in >