Okucia okienne heroal WF
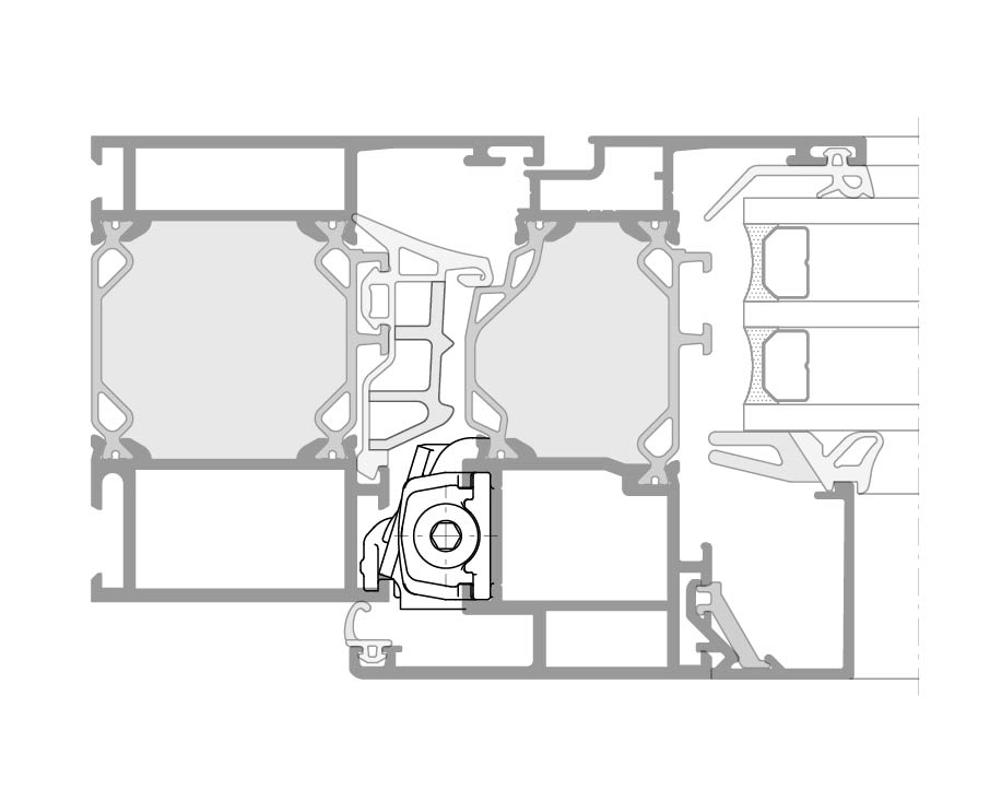
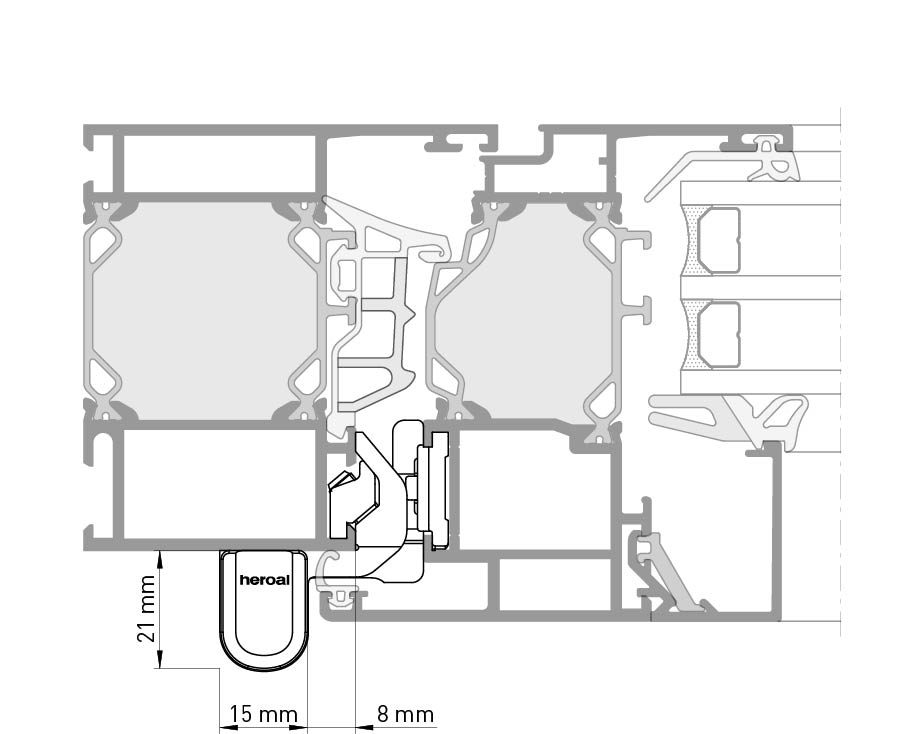
System okienny heroal WF po stronie zawiasów

heroal WF

Okucia okienne

Systemy wrębów okuciowych heroal umożliwiają pełną swobodę w zakresie projektowania. Niezależnie od tego, czy mają być widoczne, czy też ukryte – oferujemy rozwiązania dla każdego projektu. Typowe dla heroal są ponadto nowoczesne wzory uchwytów i trwałość elementów.

heroal WF 100

  • System okuć rozwierno-uchylnych z przylegającą/widoczną stroną z zawiasem
  • heroal WF 100 spełnia najwyższe wymagania dotyczące bezpieczeństwa, komfortu obsługi i wzornictwa
  • heroal WF wyznacza przyszłościowe standardy dla całej branży w dziedzinie zabezpieczeń utrudniających włamanie
  • Podstawowa wersja z podstawowym zabezpieczeniem skutecznie chroniącym przed włamaniem:
  • Poziomy punkt przechylania zabezpieczający przed wyjęciem z zawiasów
  • Regulowane, wygodne grzybkowe rolki ryglujące
  • Elementy zamykające (punkty ryglujące) z podcięciem
  • Do zastosowania w bezbarierowych drzwiach okiennych zgodnie z DIN 18040
  • Rodzaje otwierania: rozwierne (D), rozwierno-uchylne (DK), uchylno-rozwierne (TBT), przylga

heroal WF 100 i

  • System okuć rozwierno-uchylnych z ukrytą stroną z zawiasem
  • heroal WF 100 i to wydajne okucia spełniające wszystkie wymagania architektoniczne pod względem wzornictwa i maksymalnej przezroczystości
  • Ukryte okucia łączą optymalną funkcjonalność z łatwością obróbki
  • heroal WF wyznacza przyszłościowe standardy dla całej branży w dziedzinie zabezpieczeń utrudniających włamanie
  • Podstawowa wersja z podstawowym zabezpieczeniem skutecznie chroniącym przed włamaniem:
  • Zabezpieczenie przed wyjęciem z zawiasów dzięki poziomemu punktowi przechylania
  • Regulowane, wygodne grzybkowe rolki ryglujące
  • Elementy zamykające (punkty ryglujące) z podcięciem
  • Do zastosowania w bezbarierowych drzwiach okiennych zgodnie z DIN 18040
  • Rodzaje otwierania: rozwierne (D), rozwierno-uchylne (DK), uchylno-rozwierne (TBT), przylga

heroal WF 200 / heroal WF 300

Dodatki

Odkryj komunikator heroal już teraz


Wszechstronne i wygodne funkcje komunikatora heroal wspomagają Twoją pracę w sposób optymalny i oszczędzający czas. Poproś o swój osobisty dostęp już teraz i korzystaj z najnowszych dokumentów i informacji o produktach, wiadomości o wsparciu heroal i wsparciu osobistym.

Dołącz do nas! – Zostań specjalistycznym partnerem heroal

Etykieta „powered by heroal” to sygnał dla Twoich klientów, że jakość jest dla Ciebie naprawdę ważna. Zyskaj dzięki ukierunkowanemu wsparciu swojego przedsiębiorstwa. Jako nasz partner staniesz się ważną częścią marki heroal – a to oznacza maksymalne wsparcie Twojego biznesu. Masz możliwość zakupu z całego asortymentu heroal, nie tylko wyboru pojedynczych komponentów. W ten sposób doświadczysz również bezpieczeństwa systemowego na najwyższym poziomie.

  • Indywidualne szkolenia w zakresie systemów i oprogramowania
  • Doskonałe wsparcie techniczne
  • Indywidualne wsparcie marketingowe wraz z szablonami na stronę internetową
  • Osobiste wsparcie przedstawicieli handlowych

Potrzebujesz konsultacji dotyczącej produktu?

Poproś o niewiążącą konsultację >

Chcesz mieć wgląd w naszą zakładową produkcję?

Aplikuj o wycieczkę po fabryce >

Interesuje Cię praktyczne szkolenie w heroal?

Zapytaj o szkolenie >