System okienny heroal W 72
System okienny heroal W 72
Korzystanie z heroal W 72 w obszarze patio
Korzystanie z heroal W 72 w Golfhotel Zillertal
Zastosowanie heroal W 72 jako drzwi tarasowych w budynkach mieszkalnych w Oldrichovie
Korzystanie z heroal W 72 w szkole muzycznej Monheim
Zastosowanie systemu heroal W 72 jako fasady okiennej

heroal W 72

Całościowy system okienny do każdego obszaru zastosowania

System okienny heroal W 72 oferuje w ramach swoich najrozmaitszych wariantów maksymalną swobodę projektową – od planowania po wykonawstwo. Obok konstrukcji uzupełniających, takich jak klapa wentylacyjna heroal W 72 VF i elementy PSK, system ten pozwala również na perfekcyjne połączenie z systemem drzwiowym heroal D 72. heroal W 72 umożliwia również łatwą realizację fasad dla klatek schodowych. Kształtowniki skrzydeł dostępne są z mocowaniem SBN i KBN, co umożliwia ich elastyczną obróbkę. Minimalna szerokość lica wynosząca jedynie 90 mm pozwala uzyskać okna o naprawdę dużym przeszkleniu. Dzięki niskiej wartości współczynnika Uf wynoszącej 1,3 W/m²K przy szerokości lica 120 mm system okienny heroal W 72 stanowi podstawę dla dalszych etapów rozbudowy. Etapy rozbudowy systemu to heroal W 72 (bez pianki PU – zmniejszenie współczynnika U poprzez zmianę strefy izolacyjnej kształtownika i zastosowanie innych elementów izolacyjnych), heroal W 72 HI (Highly Insulated – poprawa współczynnika U poprzez zastosowanie innych elementów uszczelniających i izolacyjnych) oraz heroal W 72 UD (styl uniwersalny – drzwi okienne o wysokości progu < 20 mm). Specjalne kształtowniki umożliwiają wewnętrzne i zewnętrzne zlicowanie skrzydła i ramy, dając wrażenie elegancji i harmonijnie wpisując się w ambitne koncepcje architektoniczne.

  • Wysoka izolacja cieplna przy niewielkiej głębokości montażu
  • Sprawdzone właściwości użytkowe okuć heroal WF i heroal WF EM
  • Obszerny asortyment do każdego zastosowania

Dostępny jako pakiet heroal plus .

    Szczegóły produktu

  • Zalety przetwarzania & szczegóły produktu

    Innowacyjne kompletne rozwiązanie dla systemów okiennych heroal


    Pakiet akcesoriów heroal plus dla systemu okiennego heroal W 72 (heroal W 72 plus) to wysokiej jakości i elastyczne rozwiązanie dla wydajnych projektów budowy okien. Dzięki modułowej konstrukcji, heroal plus składa się

    Innowacyjne kompletne rozwiązanie dla systemów okiennych heroal


    Pakiet akcesoriów heroal plus dla systemu okiennego heroal W 72 (heroal W 72 plus) to wysokiej jakości i elastyczne rozwiązanie dla wydajnych projektów budowy okien. Dzięki modułowej konstrukcji, heroal plus składa się z siatki tekstylnej heroal VS Z, zabezpieczenia przed upadkiem, zintegrowanej siatki przeciw owadom i parapetu, zapewniając kompletne rozwiązanie z jednego źródła dla wszystkich branż. Wszystkie komponenty są dostępne pojedynczo, w różnych kombinacjach lub do modernizacji i mogą być konfigurowane i zamawiane w heroal Business Configurator ze zoptymalizowanym interfejsem Forterro Logikal. Dostosowane komponenty systemu zapewniają maksymalną wydajność i niezawodność w produkcji i instalacji. Dzięki jednolitemu kolorowi i powierzchni wszystkich profili aluminiowych oraz minimalnej liczbie widocznych połączeń śrubowych, heroal plus spełnia najwyższe wymagania projektowe.

  • Broszury & świadectwa badań

  • Wymiary & rysunki

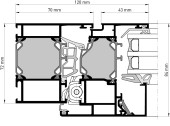
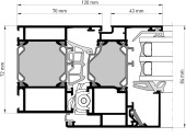
    Głębokość konstrukcyjna profilu [mm]

    Profil ramy
    72
    Profil skrzydła
    84
    Profil słupka
    72

    Widoczna szerokość profilu [mm]

    Profil ramy
    50 - 250
    Profil skrzydła
    33 - 67
    Kombinacja rama-skrzydło
    90
    Profil słupka
    74 - 254

    Warianty profili skrzydeł

    Osadzenie popychacza [SBN]
    Plastikowe mocowanie [KBN]

    Właściwości

    Grubość szkła/wypełnienia [mm]
    66
    Maks. waga skrzydła [kg]
    300
    Maks. wysokość skrzydła [mm]
    2.800
    Maks. szerokość skrzydła [mm]
    1.600

    Rysunki przekrojowe

  • Parametry wytrzymałościowe

    RC 3 Odporność na włamanie
    3 Wytrzymałość
    9A Deszczoszczelność
    3 Udarność
    > 0,84* Termoizolacja (Uw w W/[m2 · K])
    1,3/120 Termoizolacja (Uf w W/[m2 · K])
    4 Wytrzymałość mechaniczna
    1 Siła załączająca
    4 Przepuszczalność powietrza
    1 Nośność urządzeń zabezpieczających
    1-5 Klasa izolacja dźwiękowej
    C5/B5 Odporność na obciążenia wiatrem
  • Dane CAD & BIM

  • Teksty przetargowe

Referencje heroal W 72

Dodatki

Odkryj komunikator heroal już teraz


Wszechstronne i wygodne funkcje komunikatora heroal wspomagają Twoją pracę w sposób optymalny i oszczędzający czas. Poproś o swój osobisty dostęp już teraz i korzystaj z najnowszych dokumentów i informacji o produktach, wiadomości o wsparciu heroal i wsparciu osobistym.

Dołącz do nas! – Zostań specjalistycznym partnerem heroal

Etykieta „powered by heroal” to sygnał dla Twoich klientów, że jakość jest dla Ciebie naprawdę ważna. Zyskaj dzięki ukierunkowanemu wsparciu swojego przedsiębiorstwa. Jako nasz partner staniesz się ważną częścią marki heroal – a to oznacza maksymalne wsparcie Twojego biznesu. Masz możliwość zakupu z całego asortymentu heroal, nie tylko wyboru pojedynczych komponentów. W ten sposób doświadczysz również bezpieczeństwa systemowego na najwyższym poziomie.

  • Indywidualne szkolenia w zakresie systemów i oprogramowania
  • Doskonałe wsparcie techniczne
  • Indywidualne wsparcie marketingowe wraz z szablonami na stronę internetową
  • Osobiste wsparcie przedstawicieli handlowych

Potrzebujesz konsultacji dotyczącej produktu?

Poproś o niewiążącą konsultację >

Chcesz mieć wgląd w naszą zakładową produkcję?

Aplikuj o wycieczkę po fabryce >

Interesuje Cię praktyczne szkolenie w heroal?

Zapytaj o szkolenie >