Sistema a finestre heroal W 77 i
heroal W 77 i con ferramenta per finestre heroal WF EM

heroal W 77 i

Il sistema finestra con ante a scomparsa che definisce già il futuro

Il sistema finestra con ante a scomparsa heroal W 77 i è sinonimo di versatilità di progettazione architettonica, grazie alle larghezze a vista minimali. I profili anta sono disponibili con cava SBN e KBN, a garanzia di una lavorazione flessibile. La larghezza a vista minima prevista per questo sistema è di soli 81 mm. Il sistema finestra con ante a scomparsa heroal W 77 i offre la massima percentuale di vetro, un elevato isolamento termico e un design elegante senza ante visibili. Si presta a molteplici applicazioni e può essere impiegato, ad esempio, come elemento ad inserimento in facciata. Il suo valore Uw di 1,0 W/m²K con una larghezza a vista di 101 mm rende il sistema heroal W 77 i la base di partenza per un eventuale ampliamento, realizzabile grazie a heroal W 77 i UD (Universal Design) per portefinestre con ante a scomparsa, che presenta un’altezza soglia inferiore a 20 mm.

  • Elevato isolamento termico con profondità di costruzione ridotta
  • Caratteristiche di prestazione certificate con la ferramenta heroal WF e heroal WF EM
  • Elevata percentuale di vetro, larghezze a vista dei profili minimali

Disponibile come pacchetto heroal plus .

    Dettagli del prodotto

  • Vantaggi dell'elaborazione & dettagli del prodotto

    Soluzione completa e innovativa per i sistemi di finestre heroal


    Il pacchetto di accessori heroal plus per il sistema di finestre heroal W 77 (heroal W 77 plus) è una soluzione flessibile e di alta qualità per progetti di costruzione di finestre efficienti. Con il suo design modula

    Soluzione completa e innovativa per i sistemi di finestre heroal


    Il pacchetto di accessori heroal plus per il sistema di finestre heroal W 77 (heroal W 77 plus) è una soluzione flessibile e di alta qualità per progetti di costruzione di finestre efficienti. Con il suo design modulare, heroal plus è composto da una zanzariera tessile heroal VS Z, una protezione anticaduta, una zanzariera integrata e un davanzale, fornendo una soluzione completa da un unico fornitore per tutti i mestieri. Tutti i componenti sono disponibili singolarmente, in diverse combinazioni o per il montaggio a posteriori e possono essere configurati e ordinati nel Configuratore aziendale heroal con l'interfaccia ottimizzata Orgadata Logikal. I componenti di sistema personalizzati garantiscono inoltre la massima efficienza e affidabilità nella produzione e nell'installazione. Grazie all'uniformità del colore e della superficie di tutti i profili in alluminio e a un minimo di connessioni a vite visibili, heroal plus soddisfa i più alti requisiti di design.

  • Opuscoli & certificati di prova

    Certificati di prova
    Certificato di prova
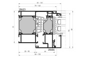
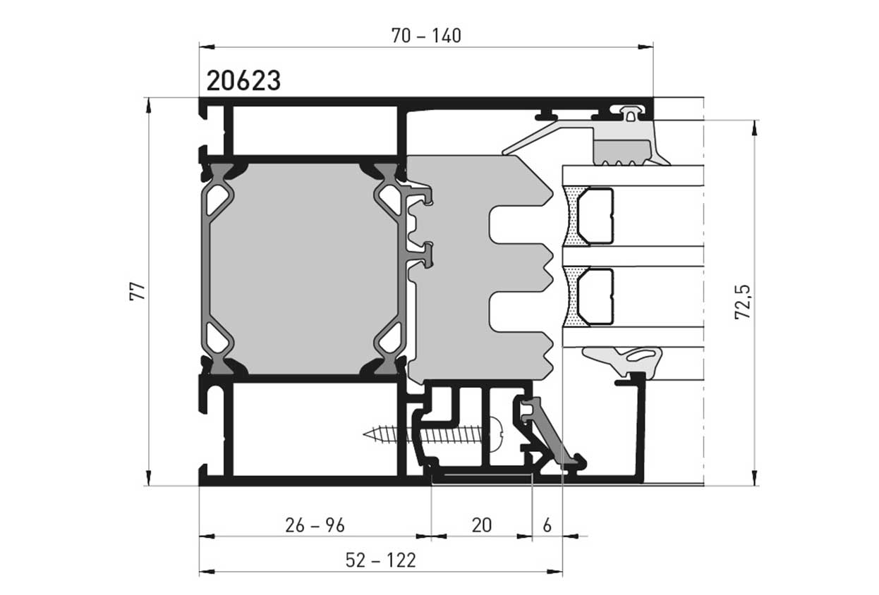
  • Dimensioni & disegni

    Profondità di montaggio profilo

    Profili telaio
    77
    Profili anta
    84
    Profili traverso
    77

    Larghezza in vista del profilo [mm]

    Profili telaio
    70 - 140
    Profili anta
    11
    Combinazione telaio-anta
    81
    Profili traverso
    94 - 194

    Varianti di profili ante

    Camera anta ferramenta tipo alluminio [SBN]
    Camera anta ferramenta tipo PVC [KBN]

    Caratteristiche dei sistemi

    Spessore vetro/pannello [mm]
    64
    Peso max. anta [kg]
    300
    Altezza max. anta [mm]
    2.400
    Larghezza max. anta [mm]
    1.200

    Disegni in sezione

  • Caratteristiche dei sistemi

    RC 2 Antieffrazione
    3 Funzionamento continuativo
    9A Tenuta alla pioggia battente
    5 Resistenza agli urti
    > 0,72 Isolamento termico [Uw in W/m2K] / Larghezza profilo [mm]
    1,0/101 Isolamento termico [Uf in W/m2K] / Larghezza profilo [mm]
    4 Resistenza meccanica
    1 Forze di manovra
    4 Permeabilità all'aria
    1 Portata di dispositivi di sicurezza
    1-5 Classe di isolamento acustico
    C5/B5 Resistenza al carico del vento
  • Dati CAD & BIM

  • Testi di gara

Extra

Scoprite heroal Communicator oggi stesso


Le numerose e comode funzioni di heroal Communicator vi assistono in modo ottimale e rapido nel vostro lavoro. Richiedete oggi stesso il vostro accesso personale e usufruite delle versioni più aggiornate di documenti e informazioni sui prodotti, delle novità su heroal nonché dell'assistenza personale.

Entrate nella squadra! - Diventate partner specializzati heroal

Con l’etichetta “powered by heroal“ dimostrerete ai vostri clienti l’attenzione verso la qualità. Traete vantaggio dal supporto mirato per la vostra azienda. In qualità di nostro partner sarete un componente importante del marchio heroal: ciò si traduce nel massimo appoggio per la vostra attività. Potrete usufruire dall’intera gamma heroal e godere della massima sicurezza dei sistemi.

  • Formazione personalizzata su sistema e software
  • Assistenza tecnica di prima classe
  • Supporto marketing personalizzato, incl. strumento per creazione siti web
  • Assistenza personalizzata dal nostro personale sul territorio

Desiderate una consulenza senza impegno?

Richiedi consulenza sui prodotti >

Vorreste farvi un'idea della nostra produzione?

Iscrivetevi alla visita in azienda >

Vi interessa un corso di formazione presso heroal?

Richiedete corso di formazione >