Coperchio per tapparelle heroal FMB 20°

heroal FMB 20°

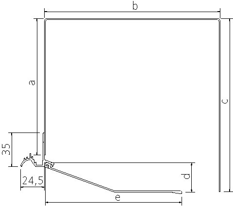
Cassonetto avvolgibile a scomparsa estruso con lato inferiore inclinato a 20°

Il lato inferiore inclinato a 20° del cassonetto a scomparsa heroal FMB 20° si integra in modo discreto nella facciata e permette un maggiore passaggio della luce. Una grande varietà di misure e colori consentono di realizzare diverse soluzioni di montaggio a filo.

  • Cassonetto a vista con lato inferiore inclinato a 20°
  • Per montaggio a filo
  • Ampia scelta di colori e design

    Dettagli del prodotto

  • Vantaggi dell'elaborazione & dettagli del prodotto

    Sostenibilità

    Il sistema heroal FMB 20°, realizzato in alluminio riciclato, si distingue per l’elevata stabilità del materiale. Grazie alle pareti, realizzate in leghe di alluminio di alta qualità, e alla speciale tecnica di giunzione heroal, si raggiunge un alto livello di sicurezza. L’ampia scelta di profili porta intonaco permette di integrarlo in modo sicuro in tutti i comuni sistemi compositi isolanti.

    Design

    Oltre che nella gamma di colori 500 RAL, DB e VEKA, la verniciatura a polvere HWR, altamente resistente alle intemperie, è disponibile anche nelle tonalità esclusive Les Couleurs® Le Corbusier®. I diversi gradi di brillantezza e le strutture valorizzano al meglio le superfici verniciate con i colori RAL. Con l’innovativo trattamento superficiale heroal SD si possono ottenere effetti di grande impatto sulle superfici estruse, come legno, cemento o ruggine. Gli effetti metallizzati riflettenti possono essere realizzati con il trattamento anodizzato. Per gli involucri edilizi, la verniciatura doppio strato e la verniciatura a polvere HWR heroal per gli elementi estrusi si abbinano perfettamente dal punto di vista estetico, assicurando l’uniformità cromatica dei sistemi heroal per finestre, porte, porte scorrevoli, facciate e coperture.

    Comfort

    Grazie ad apposite guide, è possibile integrare una zanzariera direttamente nel cassonetto. In questo modo si sfrutta al meglio lo spazio disponibile, evitando di montare la zanzariera separatamente.

  • Opuscoli & certificati di prova

  • Dimensioni & disegni

    Numero degli elementi di copertura
    2
    Numero delle misure dei cassonetti
    6
    Misure da - a
    125 - 205

    Disegni in sezione

  • Dati CAD & BIM

  • Testi di gara

Extra

Scoprite heroal Communicator oggi stesso


Le numerose e comode funzioni di heroal Communicator vi assistono in modo ottimale e rapido nel vostro lavoro. Richiedete oggi stesso il vostro accesso personale e usufruite delle versioni più aggiornate di documenti e informazioni sui prodotti, delle novità su heroal nonché dell'assistenza personale.

Entrate nella squadra! - Diventate partner specializzati heroal

Con l’etichetta “powered by heroal“ dimostrerete ai vostri clienti l’attenzione verso la qualità. Traete vantaggio dal supporto mirato per la vostra azienda. In qualità di nostro partner sarete un componente importante del marchio heroal: ciò si traduce nel massimo appoggio per la vostra attività. Potrete usufruire dall’intera gamma heroal e godere della massima sicurezza dei sistemi.

  • Formazione personalizzata su sistema e software
  • Assistenza tecnica di prima classe
  • Supporto marketing personalizzato, incl. strumento per creazione siti web
  • Assistenza personalizzata dal nostro personale sul territorio

Desiderate una consulenza senza impegno?

Richiedi consulenza sui prodotti >

Vorreste farvi un'idea della nostra produzione?

Iscrivetevi alla visita in azienda >

Vi interessa un corso di formazione presso heroal?

Richiedete corso di formazione >