Sistema di finestre eroico W 77 HI
Sistema di finestre heroal W 77 in classe di protezione antieffrazione RC 4
heroal W 77 HI con ferramenta per finestre heroal WF EM

heroal W 77 HI

Sistema finestra in alluminio idoneo per casa passiva

Grazie all’impiego delle tecniche più moderne, il sistema finestra heroal W 77 HI è in grado di raggiungere valori di isolamento termico pari al livello di casa passiva, pur mantenendo una larghezza a vista ridotta. Questo non vi consentirà solo di approfittare di interessanti incentivi in fase di acquisto, ma anche di risparmiare sui costi energetici e di riscaldamento. A differenza di altre finestre in alluminio idonee per casa passiva, il sistema heroal W 77 HI può essere realizzato con una larghezza a vista particolarmente ridotta, che si traduce in un design particolarmente piacevole e nel massimo livello di trasparenza, valorizzando l’estetica di tutta la vostra casa. La finestra in alluminio heroal W 77 HI vi offre una protezione antieffrazione certificata appartenente alla classe di resistenza RC 3, che supera il livello consigliato dalla polizia. Per una casa sicura e accogliente.

  • Soluzione idonea per casa passiva
  • Design minimale
  • Classe di protezione antieffrazione RC 3

    Dettagli del prodotto

  • Opuscoli

  • Dimensioni & disegni

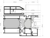
    Larghezza in vista del profilo [mm]

    Profili anta
    33 - 67
    Combinazione telaio-anta
    90

    Caratteristiche dei sistemi

    Spessore vetro/pannello [mm]
    66
    Peso max. anta [kg]
    300
    Altezza max. anta [mm]
    2.800
    Larghezza max. anta [mm]
    1.600

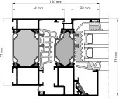
    Disegni in sezione

  • Caratteristiche dei sistemi

    RC 3 Antieffrazione
    3 Funzionamento continuativo
    9A Tenuta alla pioggia battente
    5 Resistenza agli urti
    > 0,72 Isolamento termico [Uw in W/m2K] / Larghezza profilo [mm]
    0,95/120 Isolamento termico [Uf in W/m2K] / Larghezza profilo [mm]
    4 Resistenza meccanica
    1 Forze di manovra
    4 Permeabilità all'aria
    1 Portata di dispositivi di sicurezza
    1-5 Classe di isolamento acustico
    C5/B5 Resistenza al carico del vento

    !) Speciali applicazioni per elementi di grandi dimensioni possibili, se approvate da heroal

Extra


Trovate lo specialista heroal che fa al caso vostro

1 Inviate una richiesta in pochi clic
2 Cerchiamo il partner specializzato più adatto a voi
3 Riceverete i contatti del partner specializzato

Vai alla ricerca partner specializzati

Ricerca partner specializzati >

Grazie per l’interesse dimostrato verso i prodotti heroal!

Saremo lieti di inviarti i contatti del partner specializzato heroal più giusto per te nella tua zona. A tal fine, ti chiediamo di indicarci il tuo nome, CAP/località e indirizzo email. In alternativa, se preferisci, possiamo anche contattarti telefonicamente. Per individuare il partner specializzato più adatto alle tue esigenze, ti chiediamo gentilmente di indicarci i prodotti di tuo interesse.

Informazioni personali

Si prega di completare questo campo.
Si prega di completare questo campo.
Si prega di completare questo campo.
Si prega di completare questo campo.
Si prega di completare questo campo.
Si prega di completare questo campo.
Für die Variable specialistpartner_request.placeholder_phone ist kein Wörterbucheintrag angelegt worden" value="" >

Sono interessato a:

Si prega di completare questo campo.

I sistemi heroal garantiscono un’ampia varietà di design

Il colore è uno dei più importanti strumenti di progettazione sia per l’interior design che per lo stile esterno degli edifici. Le diverse tecnologie di verniciatura e gli spettri cromatici heroal offrono la massima varietà di design e resistenza alle intemperie. La varietà cromatica è completata dal servizio di centinatura e presso-piegatura per archi a tutto sesto ed elementi finestra e porta centinati e dall’ampia gamma di tessuti per zipscreen e schermi in tessuto heroal.


Il nostro credo

Nella vita come nel lavoro, l’importante è poter scegliere. E heroal lo sa bene. Da azienda a conduzione familiare con 150 anni di esperienza, crediamo che quando si tratta di qualità non siano ammessi compromessi. È questo che ci permette di fornire soluzioni ottimali per soddisfare praticamente ogni esigenza. Essendo tra le aziende più avanzate da un punto di vista tecnologico, qualità è per noi sinonimo di maggiore efficienza, affidabilità e migliori prestazioni, il ché si traduce in soluzioni che offrono “IL MEGLIO, SEMPLICEMENTE”.

  • Più di 3.500 partner specializzati in tutto il mondo
  • Qualità dei prodotti verificata
  • Azienda a conduzione familiare con una lunga tradizione alle spalle
  • Made in Germany
  • Design personalizzato
  • Ampia offerta di servizi
  • Le migliori soluzioni tecniche