Système de fenêtre bloc heroal W 72 i

heroal W 72 i

Le système de fenêtre à ouvrant caché répond à chaque applications

Le système de fenêtres à ouvrant caché heroal W 72 i est synonyme de diversité de conception architecturale, grâce à des largeurs visibles filigranes. Les profilés d’ouvrant sont disponibles non seulement avec rainures SBN et KBN, mais aussi en vitrage intérieur et extérieur, ce qui permet une grande flexibilité de traitement et de montage. La largeur visible minimale de ce système est d’à peine 81 mm. heroal W 72 i combine une part maximale de verre et un design moderne sans ouvrant visible avec une isolation thermique élevée. Il peut être utilisé de manière polyvalente, par exemple comme élément d’insertion de façade. Avec une valeur Uf de 1,5/1,7 W/m2K pour une largeur visible de 87/91 mm, le système de fenêtres heroal W 72 constitue la base d’un niveau d’extension supplémentaire. Ces niveaux d’extension sont heroal W 72 i (sans mousse PU - réduction de la valeur U par la suppression de la zone d’isolation du profilé et l’utilisation d’autres articles isolants) et heroal W 72 i UD (Universal Design - portes-fenêtres à ouvrant caché avec hauteur de traverse < 20 mm).

  • Isolation thermique très performante pour une faible profondeur de montage
  • Caractéristiques de performance prouvées avec les ferrures heroal WF et heroal WF EM
  • Vitrage intérieur et extérieur réalisable

Disponible en tant que paquet heroal plus .

    Détails du produit

  • Avantages de la mise en œuvre & détails du produit

    Solution complète innovante pour les systèmes de fenêtres heroal


    Le pack d'accessoires heroal plus pour le système de fenêtre heroal W 72 (heroal W 72 plus) est une solution flexible et de haute qualité pour des projets de construction de fenêtres efficaces. De conception modul

    Solution complète innovante pour les systèmes de fenêtres heroal


    Le pack d'accessoires heroal plus pour le système de fenêtre heroal W 72 (heroal W 72 plus) est une solution flexible et de haute qualité pour des projets de construction de fenêtres efficaces. De conception modulaire, heroal plus se compose d'un écran textile heroal VS Z, d'une sécurité anti-chute, d'une moustiquaire enroulable intégrée ainsi que d'une tablette de fenêtre et fournit ainsi une solution complète, tous corps de métier confondus, d'un seul tenant. Tous les composants sont disponibles individuellement, dans différentes combinaisons ou pour un montage ultérieur et peuvent être configurés et commandés dans le configurateur heroal Business avec une interface Orgadata Logikal optimisée. Un autre avantage est l'efficacité et la sécurité maximales de la fabrication et du montage grâce aux composants du système coupés sur mesure. Grâce à l'uniformité des couleurs et des surfaces de tous les profilés en aluminium ainsi qu'à un minimum de vissages visibles, heroal plus répond aux exigences les plus élevées en matière de design.

  • Prospectus & certificats d'essai

  • Dimensions & dessins

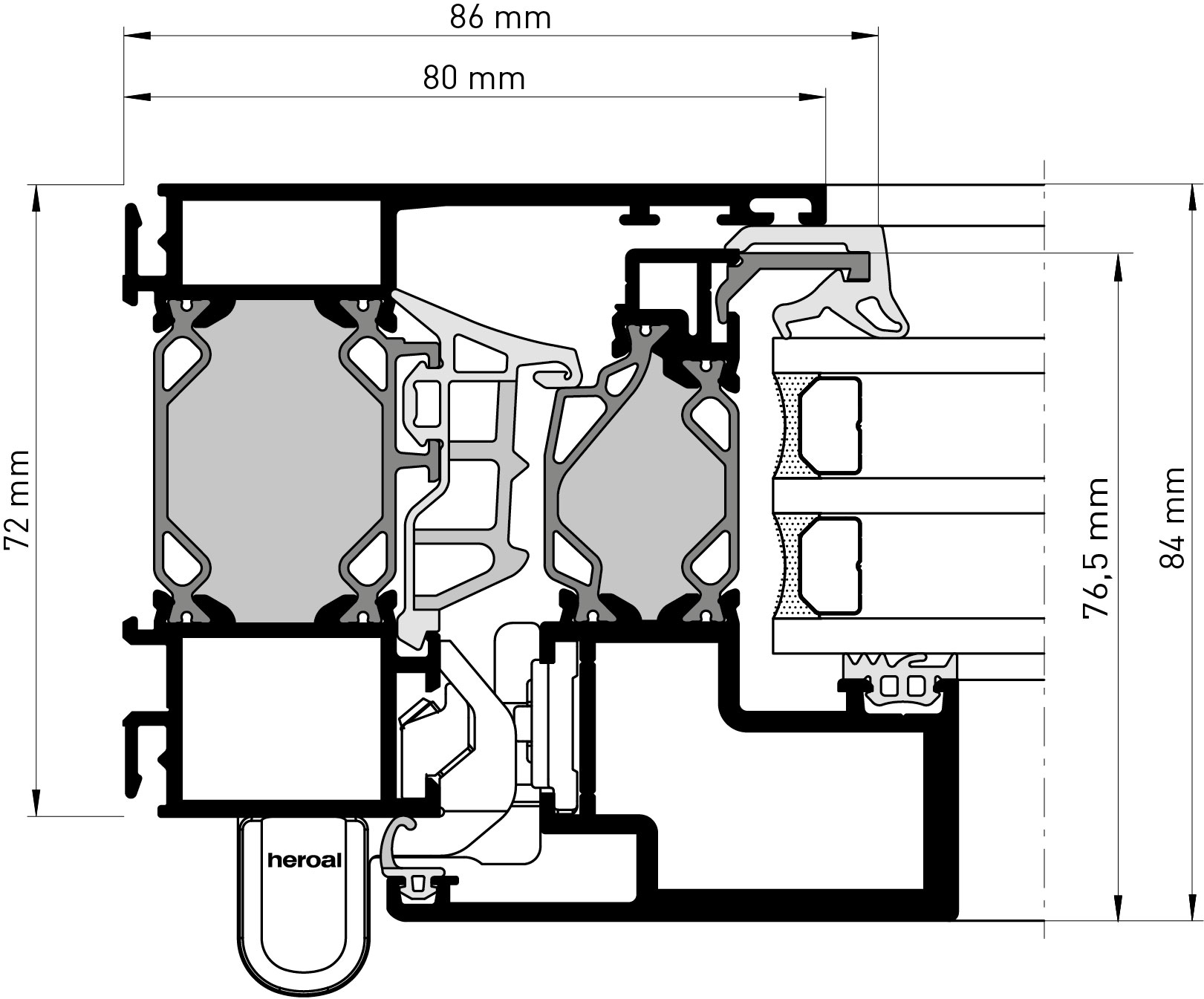
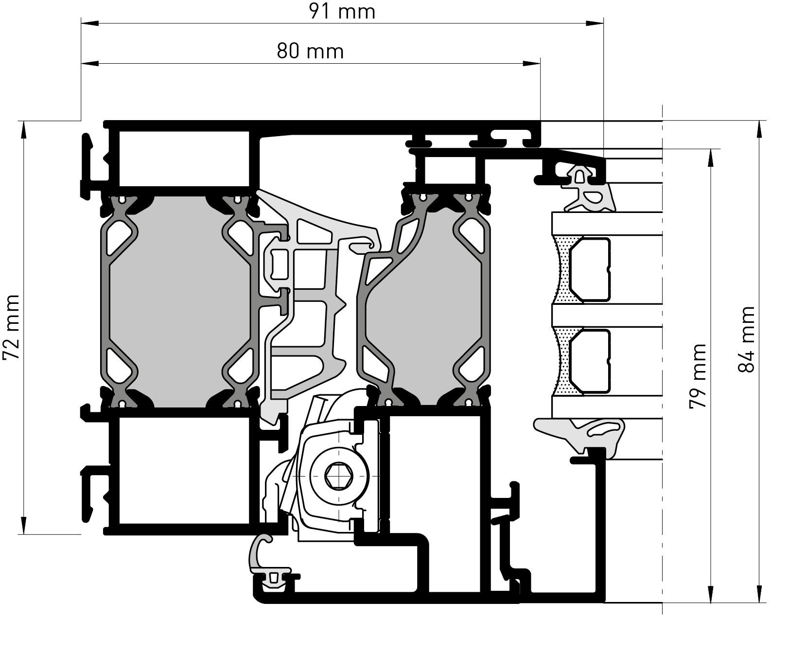
    Profondeur des profilés [mm]

    Profilés de cadre
    72
    Profilés de porte
    72
    Profilés intercalaires
    76,5 / 79

    Largeur visible des profilés [mm]

    Profilés de cadre
    70 - 120
    Profilés de porte
    verdeckt
    Combinaison ouvrant-dormant
    77 / 81
    Profilés intercalaires
    114 - 244

    Variantes de profilés de battants

    Rainure de ferrure de la tringle de commande [SBN]
    Rainure de ferrure en plastique [KBN]

    Propriétés

    Épaisseur du verre / du panneau [mm]
    48
    Poids max. des portes [kg]
    300
    Hauteurs max. de portes [mm]
    2.400
    Largeur d’ouvrant max. [mm]
    1.200

    Dessins en coupe

  • Caractéristiques de performance

    RC 2 Résistance à l’effraction
    2 Fonction continue
    9A Étanchéité à la pluie battante
    5 Résistance aux chocs
    > 0,83* Isolation thermique [Uw en W/m2K]
    1,5/97 Isolation thermique [Uf en W/m2K]
    4 Rigidité mécanique
    1 Forces de manœuvre
    4 Perméabilité à l’air
    1 Portance des dispositifs de sécurité
    1-5 Isolation phonique
    C5/B5 Résistance au vent
  • Données CAD & BIM

  • Textes d'appel d'offres

Références heroal W 72 i

Extras

Découvrez le heroal Communicator sans plus attendre


Les fonctions multiples et pratiques du heroal Communicator vous permettent d’optimiser votre travail et de gagner du temps. Demandez vite vos données d’accès personnelles et profitez des informations produits, actualités et documents les plus récents autour de heroal et du support personnel.

Rejoignez le réseau ! Devenez partenaire expert heroal

Lorsque vous êtes titulaire du label « powered by heroal », vous démontrez à vos clients que vous travaillez dans une logique de qualité. Vous bénéficiez de notre assistance ciblée pour votre entreprise. En qualité de partenaire, vous devenez une composante importante de la marque heroal. Concrètement, cela signifie que vos activités bénéficient d'un soutien maximum. Vous puisez vos produits au sein de la gamme heroal complète et n'achetez pas de composants isolés. Ainsi, vous bénéficiez d'une sécurité système optimale.

  • Formations système et logiciels individuelles
  • Support technique de haute qualité
  • Support marketing individuel avec outil de création de site Web
  • Support personnel par le service commercial compétent

Vous souhaitez un conseil produit sans engagement?

Demander un conseil produit >

Vous voulez avoir un aperçu de notre production

Demander une visite d'usine >

Vous êtes intéressé par une formation chez heroal ?

Demander une formation >