Système de fenêtre heroal W 72 CL

heroal W 72 CL

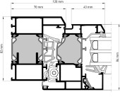
Variante biseautée du système de fenêtres heroal W 72

Avec son contour Classicline biseauté, le système de fenêtres heroal W 72 CL s’intègre de manière intemporelle et harmonieuse dans les styles architecturaux classiques. Il s’agit donc d’une solution parfaite pour la rénovation de bâtiments classés monuments historiques, qu’il s’agisse de logements ou de bâtiments commerciaux. Le système offre également une connexion parfaite avec le système de porte heroal D 72 CL. Les profilés d’ouvrant sont disponibles avec des rainures SBN et KBN, ce qui permet un traitement flexible. Des fenêtres avec une grande proportion de verre peuvent être réalisées grâce à la faible largeur visible de seulement 100 mm. Avec une faible valeur Uf de 1,3 W/m²K pour une largeur visible de 120 mm, la variante de système heroal W 72 CL constitue la base d’autres niveaux d’extension. Ces niveaux d’extension du système sont heroal W 72 CL (sans mousse PU - réduction de la valeur U par la suppression de la zone d’isolation du profilé et l’utilisation d’autres articles isolants) et heroal W 72 CL UD (Universal Design - portes-fenêtres avec hauteur de traverse < 20 mm).

  • Design classique
  • Idéal pour les rénovations
  • Grande variété de couleurs et de designs

Extras

Découvrez le heroal Communicator sans plus attendre


Les fonctions multiples et pratiques du heroal Communicator vous permettent d’optimiser votre travail et de gagner du temps. Demandez vite vos données d’accès personnelles et profitez des informations produits, actualités et documents les plus récents autour de heroal et du support personnel.

Rejoignez le réseau ! Devenez partenaire expert heroal

Lorsque vous êtes titulaire du label « powered by heroal », vous démontrez à vos clients que vous travaillez dans une logique de qualité. Vous bénéficiez de notre assistance ciblée pour votre entreprise. En qualité de partenaire, vous devenez une composante importante de la marque heroal. Concrètement, cela signifie que vos activités bénéficient d'un soutien maximum. Vous puisez vos produits au sein de la gamme heroal complète et n'achetez pas de composants isolés. Ainsi, vous bénéficiez d'une sécurité système optimale.

  • Formations système et logiciels individuelles
  • Support technique de haute qualité
  • Support marketing individuel avec outil de création de site Web
  • Support personnel par le service commercial compétent

Vous souhaitez un conseil produit sans engagement?

Demander un conseil produit >

Vous voulez avoir un aperçu de notre production

Demander une visite d'usine >

Vous êtes intéressé par une formation chez heroal ?

Demander une formation >