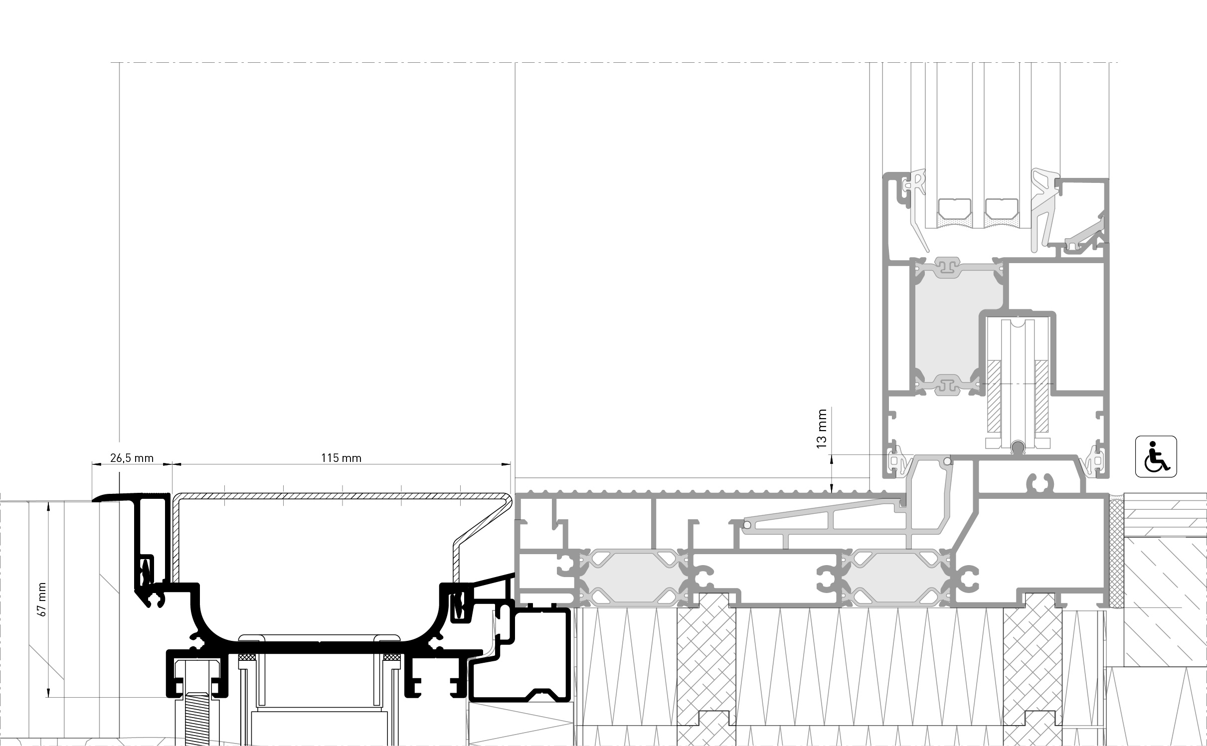
heroal DS avec barrière zéro et système de fenêtre D 72
Système de drainage heroal en vue d'angle

heroal DS Systemès de portes

Le système de drainage de surface linéaire intégré

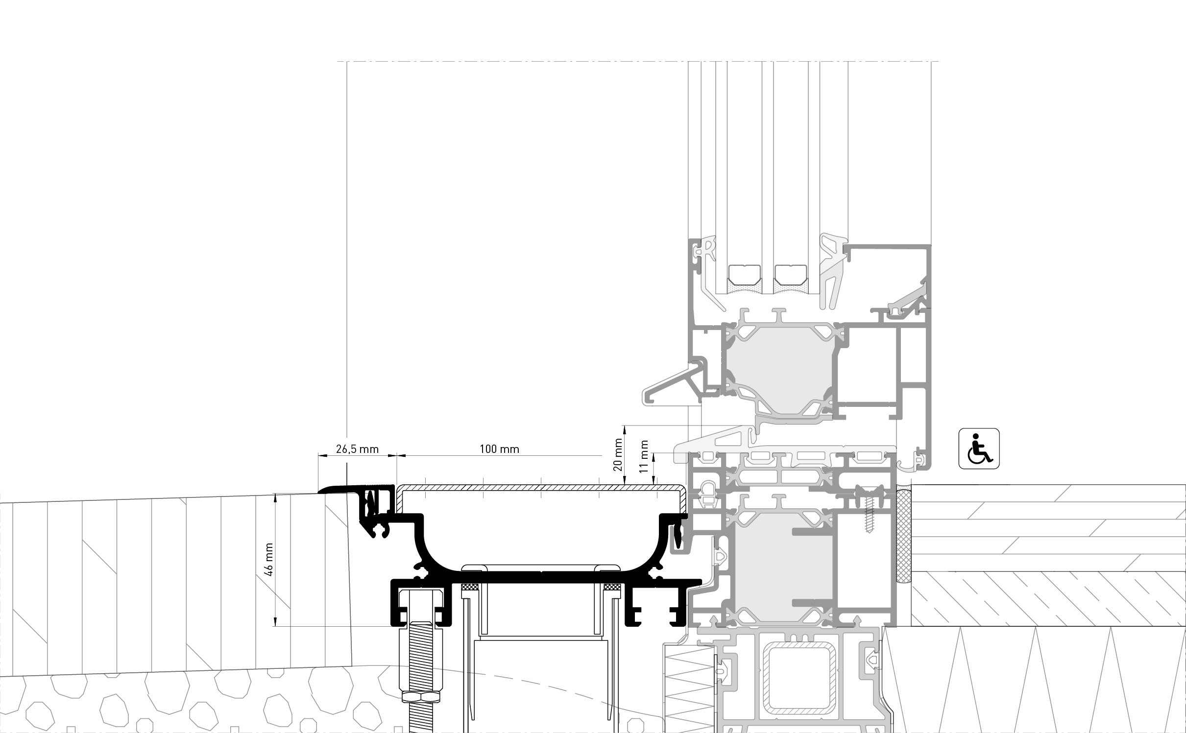
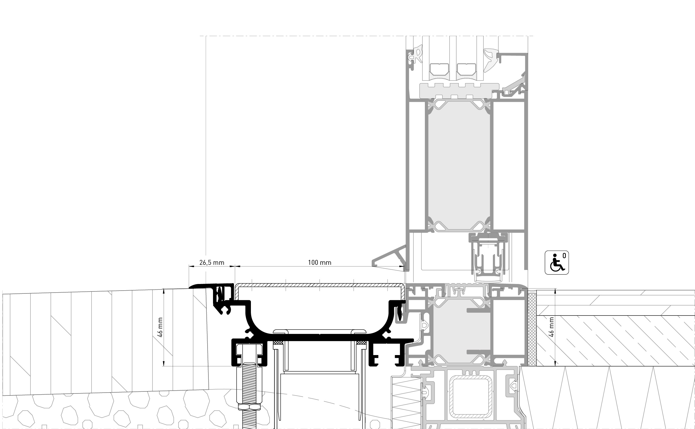
Des mesures particulières sont nécessaires pour réaliser dans les règles des seuils adaptés aux handicapés dans la zone des éléments de porte, tout en garantissant une protection contre les dommages dus à l’humidité à l’intérieur. La mise en œuvre d’un système de drainage, assurant l’évacuation sans retenue de l’eau de surface, représente une solution système particulièrement sûre. Non seulement la quantité de pluie prévue, mais également l’exécution du revêtement constituent des facteurs déterminants pour la planification d’une évacuation optimale de l’eau de surface et, par conséquent, pour le choix de la solution de drainage la mieux appropriée.

Le nouveau système de drainage innovant heroal DS offre aux maîtres d’œuvre, aux concepteurs et aux architectes différents avantages, tels que la sécurité de planification, un grand choix de combinaisons et des solutions système pluridisciplinaires.

  • Solutions adaptées à tous les types d’ouvertures de grandes dimensions dans les gammes de portes d’entrée, de portes-fenêtres et de portes coulissantes à levage
  • Sécurité de planification garantie par les nombreuses possibilités de combinaisons des différents systèmes heroal
  • Intégration facile dans le bâtiment, neuf ou rénové
  • Évacuation sans retenue de l’eau de surface
  • Débit d’évacuation d’env. 0,8 l/s pour la norme DN 50
  • Pieds d’appui librement positionnables pour des charges ponctuelles pouvant atteindre jusqu’à 1,5 t
  • Recouvrement en acier inoxydable de qualité disponible en ­différentes variantes de conception

heroal DS - BATIMAT Innovation Award 2015
Le nouveau système innovateur de drainage heroal DS a été récompensé dans la catégorie „Joinery & Fenestration“ par le prix de l´Innovation „Special Mention of the Grand Jury - Accessibility“.

Extras

Découvrez le heroal Communicator sans plus attendre


Les fonctions multiples et pratiques du heroal Communicator vous permettent d’optimiser votre travail et de gagner du temps. Demandez vite vos données d’accès personnelles et profitez des informations produits, actualités et documents les plus récents autour de heroal et du support personnel.

Rejoignez le réseau ! Devenez partenaire expert heroal

Lorsque vous êtes titulaire du label « powered by heroal », vous démontrez à vos clients que vous travaillez dans une logique de qualité. Vous bénéficiez de notre assistance ciblée pour votre entreprise. En qualité de partenaire, vous devenez une composante importante de la marque heroal. Concrètement, cela signifie que vos activités bénéficient d'un soutien maximum. Vous puisez vos produits au sein de la gamme heroal complète et n'achetez pas de composants isolés. Ainsi, vous bénéficiez d'une sécurité système optimale.

  • Formations système et logiciels individuelles
  • Support technique de haute qualité
  • Support marketing individuel avec outil de création de site Web
  • Support personnel par le service commercial compétent

Vous souhaitez un conseil produit sans engagement?

Demander un conseil produit >

Vous voulez avoir un aperçu de notre production

Demander une visite d'usine >

Vous êtes intéressé par une formation chez heroal ?

Demander une formation >