Rollladenblende heroal FMB 20°

heroal FMB 20°

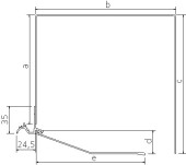
Stranggepresster Unterputz-Rollladenkasten mit 20°-Schräge

Mit seiner in 20° abgeschrägten Blende fügt sich der Unterputz-Kasten heroal FMB 20° unauffällig in die Fassade ein und sorgt für einen erhöhten Lichteinfall. Variantenvielfalt in Größe und Farbe bieten vielfältige Lösungen für die Unterputz-Montage.

  • 20° abgeschrägte Sichtblende
  • Für die Unterputzmontage
  • Große Farb- und Designauswahl

    Produktdetails

  • Verarbeitungsvorteile & Produktdetails

    Nachhaltigkeit

    Der heroal FMB 20° aus recyceltem Aluminium zeichnet sich durch eine hohe Materialstabilität aus. Mit Wandungen aus hochwertigen Aluminium-Legierungen plus spezieller heroal Verbindungstechnik wird ein hohes Maß an Sicherheit erreicht. Eine große Auswahl an Putzträgerprofilen sorgt für den sicheren Einbau in alle gängigen Wärmedämmverbundsysteme.

    Design

    Die hochwetterresistente heroal hwr-Pulverbeschichtung ist neben über 500 RAL-, DB- und VEKA-Farbtönen auch in den exklusiven Les Couleurs® Le Corbusier® verfügbar. Verschiedene Glanzgrade und Strukturen bringen in RAL-Farben beschichtete Oberflächen optimal zur Geltung. Mit der innovativen Oberflächenveredelung heroal SD erhalten stranggepresste Oberflächen eindrucksvolle Optiken wie Holz, Rost oder Beton. Metallisch-reflektierende Optiken lassen sich mit einer Eloxalbeschichtung kreieren. Für Gebäudehüllen wie aus einem Guss sind der heroal 2-Schicht-Dicklack und die heroal hwr-Pulverbeschichtung für stranggepresste Elemente optisch ideal aufeinander abgestimmt – für perfekte Farbtongleichheit zu den heroal Fenster-, Tür-, Schiebetür-, Fassaden- und Überdachungssystemen.

    Komfort

    Mit speziellen Führungsschienen kann ein Insektenschutz direkt in den Blendkasten integriert werden. Der vorhandene Platz wird optimal genutzt und eine zusätzliche Montage für den Insektenschutz entfällt.

  • Prospekte & Prüfzeugnisse

  • Maße & Zeichnungen

    Anzahl der Blendenteile
    2
    Anzahl Kastengrößen
    6
    Größen von – bis
    125 - 205

    Schnittzeichnungen

  • CAD & BIM Daten

  • Ausschreibungstexte



Extras

Architektenberatung nach Maß

Um eine allumfassende Beratung gewährleisten zu können, sind heroal Architektenberater in ganz Deutschland tätig und beraten Sie, bei Bedarf, direkt am Ort Ihres Bauprojektes. Der technische Support unterstützt Sie in allen Fragen rund um Fenster, Türen und Fassaden sowie Rollladen, Sonnenschutz und Rolltore. Sie sind neu bei heroal? Nehmen Sie noch heute Kontakt zu uns auf!

Alle Informationen im heroal Communicator

In unserem Communicator, dem Online Arbeitsplatz von heroal, halten wir stets die aktuellsten Dokumente für Sie bereit. Über die Communicator-App können Sie binnen kürzester Zeit mit Ihrem zuständigen Architektenberater in Kontakt treten.

  • Prüfdokumente herunterladen
  • Produktinformationen finden
  • CAD-Daten in kürzester Zeit herunterladen
  • BIM-Daten herunterladen
  • Neuste Referenzobjekte finden

Communicator Registrierung > Communicator Anmeldung >