Fensterbeschlag heroal WF
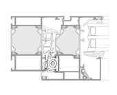
Fenstersystem heroal WF Bandseite

heroal WF

Fensterbeschläge

heroal Beschlagsysteme für Fenster erlauben größtmöglichen Gestaltungsspielraum mit modernen Griffdesigns und zeichnen sich durch Langlebigkeit aus. Aufliegend oder verdeckt liegend lässt sich für jede Architektur der passende Beschlag finden.

heroal WF 100

  • Drehkipp-Beschlagsystem mit aufliegender/sichtbarer Bandseite
  • heroal WF 100 erfüllt höchste Anforderungen an Sicherheit, Bedienkomfort und Design
  • heroal WF setzt zukunftsorientierte und brachenweite Maßstäbe im Bereich der Einbruchhemmung
  • Basisversion mit Grundsicherheit für wirksamen Schutz an Einbruchhemmung:
  • waagerechter Kipppunkt für Aushebesicherung
  • rollengelagerte verstellbare Komfort-Pilzkopfverriegelungen
  • Schließstücke (Verriegelungspunkte) mit Hinterschnitt
  • einsetzbar bei barrierefreien Fenstertüren gemäß DIN 18040
  • Öffnungsarten: Dreh (D), Drehkipp (DK), Kipp vor Dreh (TBT), Stulp

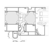
heroal WF 100 i

  • Drehkipp-Beschlagsystem mit verdeckt liegender Bandseite
  • heroal WF 100 i ist die effiziente Beschlaglösung für architektonische Anforderungen im Hinblick auf Design und maximale Transparenz
  • die verdeckt liegende heroal Beschlaglösung vereint perfekte Funktionalität und Verarbeitungsfreundlichkeit
  • heroal WF setzt zukunftsorientierte und brachenweite Maßstäbe im Bereich der Einbruchhemmung
  • Basisversion mit Grundsicherheit für wirksamen Schutz an Einbruchhemmung:
  • Aushebesicherung durch waagerechten Kipppunkt
  • rollengelagerte verstellbare Komfort-Pilzkopfverriegelungen
  • Schließstücke (Verriegelungspunkte) mit Hinterschnitt
  • einsetzbar bei barrierefreien Fenstertüren gemäß DIN 18040
  • Öffnungsarten: Dreh (D), Drehkipp (DK), Kipp vor Dreh (TBT), Stulp

heroal WF 200 / heroal WF 300

Objektbeschlag nur auf Sonderbestellung erhältlich.

Extras

Architektenberatung nach Maß

Um eine allumfassende Beratung gewährleisten zu können, sind heroal Architektenberater in ganz Deutschland tätig und beraten Sie, bei Bedarf, direkt am Ort Ihres Bauprojektes. Der technische Support unterstützt Sie in allen Fragen rund um Fenster, Türen und Fassaden sowie Rollladen, Sonnenschutz und Rolltore. Sie sind neu bei heroal? Nehmen Sie noch heute Kontakt zu uns auf!

Alle Informationen im heroal Communicator

In unserem Communicator, dem Online Arbeitsplatz von heroal, halten wir stets die aktuellsten Dokumente für Sie bereit. Über die Communicator-App können Sie binnen kürzester Zeit mit Ihrem zuständigen Architektenberater in Kontakt treten.

  • Prüfdokumente herunterladen
  • Produktinformationen finden
  • CAD-Daten in kürzester Zeit herunterladen
  • BIM-Daten herunterladen
  • Neuste Referenzobjekte finden

Communicator Registrierung > Communicator Anmeldung >