Venstersysteem heroal W 72
Venstersysteem heroal W 72
Gebruik van heroal W 72 in de patio
Gebruik van heroal W 72 in het Golfhotel Zillertal
Gebruik van heroal W 72 als terrasdeur op woongebouwen in Oldrichov
Gebruik van heroal W 72 in de muziekschool van Monheim
Toepassing van heroal W 72 als raamgevel

heroal W 72

Flexibel aluminium raamsysteem voor elke toepassing

Met het aluminium raamsysteem heroal W 72 heeft heroal een allrounder in het programma, die u de hoogste functionaliteit en flexibiliteit voor elke toepassing biedt. De unieke webgeometrie en 100% vulling van de isolatiekamer maken de beste isolatiewaarden mogelijk met een filigrane frontbreedte van slechts 72 mm. Zo bespaart u verwarmingskosten in de winter en energie voor de airconditioning in de zomer. heroal W 72 biedt u gecertificeerde inbraakbeveiliging tot weerstandsklasse RC 3 - minimale bescherming van klasse RC 2 wordt aanbevolen door de politie. Dus je krijgt zekerheid voor alles wat je dierbaar is.

  • Filigraan ontwerp
  • Warmte-isolatie Uf= 1,3
  • Inbraakbeveiligingsklasse RC 3

    Productdetails

  • Brochures

  • Afmetingen & tekeningen

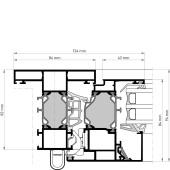
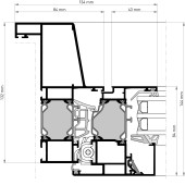
    Profielaanzichtbreedte [mm]

    Vleugelprofielen
    33 - 67
    Vleugel-kozijncombinatie
    90

    Systeemeigenschappen

    Glas-/vullingdikte [mm]
    66
    Max. vleugelgewichten [kg]
    300
    Max. vleugelhoogten [mm]
    2.800
    Max. vleugelbreedten [mm]
    1.600

    Doorsnedetekeningen

  • Prestatiekenmerken

    RC 3 Inbraakwerendheid
    3 Duurfunctie
    9A Slagregendichtheid
    3 Stootvastheid
    > 0,84* Warmte-isolatie (Uw in W/m2K)
    1,3/120 Warmte-isolatie (Uf in W/m2K)
    4 Mechanische sterkte
    1 Bedieningskrachten
    4 Luchtdoorlatendheid
    1 Draagvermogen van veiligheidsvoorzieningen
    1-5 Geluidsisolatieklasse
    C5/B5 Weerstand tegen windbelasting

Referenties heroal W 72

Extra's

heroal systemen staan voor ontwerpdiversiteit

Kleur is een van de belangrijkste ontwerpinstrumenten, zowel voor de binnenhuisarchitectuur als voor de buitenarchitectuur van gebouwen. De verschillende coatingtechnologieën en kleurenpaletten van heroal bieden de hoogste designdiversiteit in zeer weerbestendige kwaliteit. De kleurenvariëteit wordt aangevuld door de buig- en vouwservice voor ronde bogen en gebogen raam- en deurelementen en de uitgebreide selectie stoffen voor heroal zip- en screendoek.


De heroal belofte

Hoe we leven en werken, dat moeten we zelf vrij in kunnen kiezen. heroal weet dat maar al te goed. Als familiebedrijf met 150 jaar ervaring zijn we ervan overtuigd dat er op kwaliteit niet mag worden bezuinigd. Zo is er met heroal producten altijd wel een optimale oplossing voor elke behoefte te vinden. Voor ons als technologische marktleider betekent kwaliteit meer efficiëntie, meer betrouwbaarheid en betere prestaties, wat resulteert in oplossingen die “EENVOUDIG. BETER.” zijn.

  • Meer dan 3.500 vakspecialisten wereldwijd
  • Producten in bewezen kwaliteit
  • Familiebedrijf met een lange traditie
  • Made in Germany
  • Vestiging in Nederland
  • Individueel design
  • Uitgebreid serviceaanbod
  • De beste technische oplossingen