Hef- en schuifsysteem heroal S 77 SL
Hef- en schuifsysteem heroal S 77 SL als volledig glazen hoek
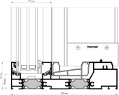
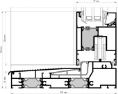
heroal S 77 SL kozijnbeglazing in detail
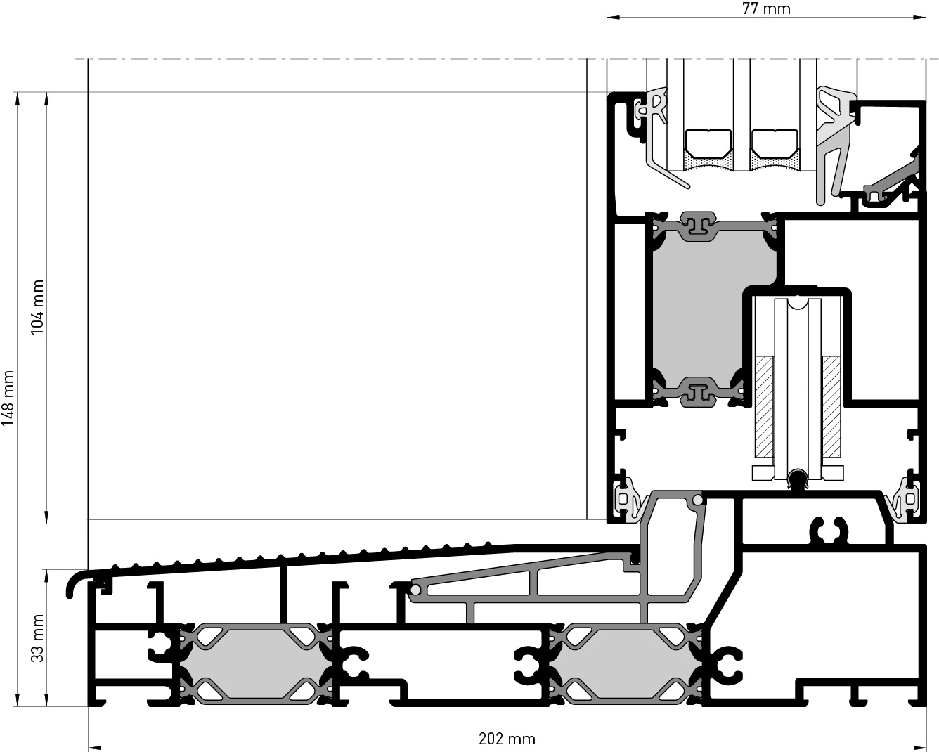
heroal S 77 SL frameconstructie detailaanzicht
Hef- en schuifsysteem heroal S 77 SL met gevelsysteem heroal C 50 HI
Gebruik van heroal S 77 SL in de woonkamer
Gebruik van heroal S 77 SL in het buitenhuis op Rügen
Gebruik van heroal S 77 SL in het zwembadhuisje, Frankrijk

heroal S 77 SL

Innovatieve hef- en schuifdeur voor uitgebreide transparantie

Het aluminium hef- en schuifsysteem heroal S 77 SL is een innovatieve en designgerichte lift- en schuifdeur voor terras, balkon of serre. Met grote oppervlakken voorzien van vaste beglazing in combinatie met beweegbare monorailvleugels fungeert heroal S 77 SL als een bijna onzichtbare schakel tussen binnen en buiten. Tegelijkertijd bereikt de hef- en schuifdeur optimale isolatiewaarden. De vaste volledig glazen hoek of een hoekoplossing voor het openen vervaagt de grenzen tussen binnen en buiten - voor een unieke ruimtelijke ervaring. Met optimale isolatiewaarden van Uw ≥ 0,86 W/m2K en inbraakwerendheidsklasse RC 2 wordt heroal S 77 SL aanbevolen als hoogwaardige, esthetische en even functionele oplossing. Zoals alle schuif- en hefdeuren van heroal is ook heroal S 77 SL in een barrièrevrije uitvoering verkrijgbaar.

  • Buiten beglazing van het vaste element
  • Volledig glazen hoekopening of vast
  • Inbraakbeveiliging tot RC 2

    Productdetails

  • Brochures

  • Afmetingen & tekeningen

    Profielaanzichtbreedte [mm]

    Vleugelprofielen
    104

    Systeemeigenschappen

    Glas-/vullingdikte [mm]
    52
    Max. vleugelgewichten [kg]
    300 - 400
    Max. vleugelhoogten [mm]
    3.000

    Doorsnedetekeningen

  • Prestatiekenmerken

    RC 2 Inbraakwerendheid
    9A Slagregendichtheid
    > 0,86 Warmte-isolatie (Uw in W/m2K)
    > 2,1 Warmte-isolatie (Uf in W/m2K)
    1 Bedieningskrachten
    4 Luchtdoorlatendheid
    1 - 3 Geluidsisolatieklasse
    C3/B3 Weerstand tegen windbelasting

Extra's

heroal systemen staan voor ontwerpdiversiteit

Kleur is een van de belangrijkste ontwerpinstrumenten, zowel voor de binnenhuisarchitectuur als voor de buitenarchitectuur van gebouwen. De verschillende coatingtechnologieën en kleurenpaletten van heroal bieden de hoogste designdiversiteit in zeer weerbestendige kwaliteit. De kleurenvariëteit wordt aangevuld door de buig- en vouwservice voor ronde bogen en gebogen raam- en deurelementen en de uitgebreide selectie stoffen voor heroal zip- en screendoek.


De heroal belofte

Hoe we leven en werken, dat moeten we zelf vrij in kunnen kiezen. heroal weet dat maar al te goed. Als familiebedrijf met 150 jaar ervaring zijn we ervan overtuigd dat er op kwaliteit niet mag worden bezuinigd. Zo is er met heroal producten altijd wel een optimale oplossing voor elke behoefte te vinden. Voor ons als technologische marktleider betekent kwaliteit meer efficiëntie, meer betrouwbaarheid en betere prestaties, wat resulteert in oplossingen die “EENVOUDIG. BETER.” zijn.

  • Meer dan 3.500 vakspecialisten wereldwijd
  • Producten in bewezen kwaliteit
  • Familiebedrijf met een lange traditie
  • Made in Germany
  • Vestiging in Nederland
  • Individueel design
  • Uitgebreid serviceaanbod
  • De beste technische oplossingen