Okenní systém heroal W 72
Okenní systém heroal W 72
Použití heroal W 72 na terase
Použití heroal W 72 v Golfhotelu Zillertal
Použití heroal W 72 jako terasových dveří na obytných budovách v Oldřichově
Použití heroal W 72 v hudební škole Monheim
Použití systému heroal W 72 jako okenní fasády

heroal W 72

Kompletní okenní systém pro každou oblast použití

Okenní systém heroal W 72 nabízí díky svým všestranným variantám maximální volnost při navrhování – od plánování až po výrobu. Kromě doplňkových konstrukcí, jako je ventilační klapka heroal W 72 VF a prvky PSK, nabízí systém také dokonalé napojení na dveřní systém heroal D 72. Křídlové profily jsou k dispozici s drážkami SBN a KBN, což umožňuje flexibilní zpracování. Okna s vysokým podílem skla lze realizovat díky minimální pohledové šířce pouhých 90 mm. S nízkou hodnotou Uf 1,3 W/m²K při pohledové šířce 120 mm tvoří okenní systém heroal W 72 základ pro další stupně konstrukčních úprav. Tyto stupně konstrukčních úprav systému jsou heroal W 72 (bez PU pěny - snížení hodnoty U změnou izolační zóny profilu a použitím jiných izolačních materiálů), heroal W 72 HI (Highly Insulated - zlepšení hodnoty U použitím jiných těsnicích a izolačních materiálů) a heroal W 72 UD (Universal Design - balkonové dveře s výškou prahu < 20 mm). Speciální rámové profily umožňují vizuální spojení křídla a rámu v jedné rovině uvnitř i zvenku – pro elegantní vzhled a harmonickou integraci do architektonicky náročných prostorových koncepcí.

  • Vysoká tepelná izolace při nízké konstrukční hloubce
  • Doložené výkonnostní charakteristiky s kováním heroal WF a heroal WF EM
  • Rozsáhlý sortiment pro každé použití

K dispozici jako balíček heroal plus .

    Podrobnosti o produktu

  • Výhody zpracování & podrobnosti o produktu

    Inovativní kompletní řešení pro okenní systémy heroal


    Balíček příslušenství heroal plus pro okenní systém heroal W 72 (heroal W 72 plus) je vysoce kvalitní a flexibilní řešení pro efektivní projekty výstavby oken. Díky své modulární konstrukci se heroal plus skládá z textilní sítě

    Inovativní kompletní řešení pro okenní systémy heroal


    Balíček příslušenství heroal plus pro okenní systém heroal W 72 (heroal W 72 plus) je vysoce kvalitní a flexibilní řešení pro efektivní projekty výstavby oken. Díky své modulární konstrukci se heroal plus skládá z textilní sítě heroal VS Z, systému ochrany proti pádu, integrované sítě proti hmyzu a okenního parapetu, čímž poskytuje kompletní řešení z jedné ruky pro všechny profese. Všechny komponenty jsou k dispozici jednotlivě, v různých kombinacích nebo pro dodatečnou montáž a lze je konfigurovat a objednávat v heroal Business Configurator s optimalizovaným rozhraním Forterro Logikal. Komponenty systému přizpůsobené na míru zajišťují také maximální efektivitu a spolehlivost při výrobě a instalaci. Díky barevné a povrchové jednotnosti všech hliníkových profilů a minimu viditelných šroubových spojů splňuje heroal plus nejvyšší požadavky na design.

  • Brožury & zkušební certifikáty

  • Rozměry & výkresy

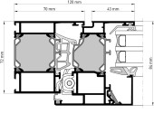
    Stavební hloubka profilu [mm]

    Profily rámu
    72
    Profily křídel
    84
    Profily příčlí
    72

    Náhledová šířka profilu [mm]

    Profily rámu
    50 - 250
    Profily křídel
    33 - 67
    Kombinace rámů křídel
    90
    Profily příčlí
    74 - 254

    Varianty profilu křídla

    Drážka kování posuvné tyče [SBN]
    Drážka umělohmotného kování [KBN]

    Vlastnosti systému

    Síla skla/výplně [mm]
    66
    max. Hmotnost křídla [kg]
    300
    max. Výšky křídel [mm]
    2.800
    max. šířka křídla [mm]
    1.600

    Výkresy řezů

  • Výkonové vlastnosti

    RC 3 Zábrana proti vloupání
    3 Trvalá funkce
    9A Těsnost proti silnému dešti
    3 Pevnost v rázu
    > 0,84* Tepelná izolace (Uw ve W/m2K)
    1,3/120 Tepelná izolace (Uf ve W/m2K)
    4 Mechanická pevnost
    1 Ovládací síly
    4 Propustnost vzduchu
    1 Nosnost bezpečnostních zařízení
    1-5 Třída protihlukové ochrany
    C5/B5 Odolnost proti zatížení větrem
  • Data CAD & BIM

  • Texty nabídek

Reference heroal W 72

Doplňky

Objevte nyní heroal Communicator


Rozmanité a komfortní funkce heroal Communicatoru vám poskytují podporu pro optimální a časově úspornou práci. Požádejte nyní o svůj osobní přístup a využijte aktuálních dokumentů a produktových informací, novinek heroal a také osobní podpory.

Spolupracujte s námi! - Staňte se obchodním partnerem heroal

S nálepkou „powered by heroal“ prezentujete vašim zákazníkům povědomí kvality. Profitujte z cílené podpory vašeho podniku. Jako náš partner se stanete důležitou součástí značky heroal - to představuje maximální podporu pro váš obchod. Nakupujete z kompletního sortimentu heroal a ne pouze jednotlivé komponenty. Užíváte si také nejvyššího systémového zabezpečení.

  • Individuální systémová a softwarová školení
  • Prvotřídní technická podpora
  • Individuální marketingová podpora včetně „stavebnice“ webových stránek
  • Individuální péče o zákazníka poskytovaná příslušným oddělením

Máte zájem o nezávaznou konzultaci?

Vyžádat konzultaci >

Chcete si prohlédnout naši výrobu

Přihlásit se k prohlídce závodu >

Máte zájem o produktové školení u firmy heroal?

Poptat školení >