Okenní systém s certifikací pro pasivní domy
Okenní systém heroal W 77 PH
heroal W 77 PH s okenním kováním heroal WF EM

heroal W 77 PH

Okenní systém certifikovaný pro pasivní domy

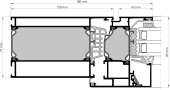
Již pri konstrukcní hloubce pouhých 77 mm a pohledové šírce 180 mm splnuje okenní systém heroal W 77 PH prísné požadavky Institutu pro pasivní domy Dr. Feista.

Již s pohledovou šírkou pouhých 120 mm je dosažena hodnota Uf?0,8 W/m²K vhodná pro pasivní domy.

    Podrobnosti o produktu

  • Brožury & zkušební certifikáty

  • Rozměry & výkresy

    Stavební hloubka profilu [mm]

    Profily rámu
    77
    Profily křídel
    89
    Profily příčlí
    77

    Náhledová šířka profilu [mm]

    Profily rámu
    70 - 250
    Profily křídel
    43
    Kombinace rámů křídel
    120
    Profily příčlí
    164

    Varianty profilu křídla

    Drážka kování posuvné tyče [SBN]
    Drážka umělohmotného kování [KBN]

    Vlastnosti systému

    Síla skla/výplně [mm]
    66
    max. Hmotnost křídla [kg]
    300
    max. Výšky křídel [mm]
    2.800
    max. šířka křídla [mm]
    1.600

    Výkresy řezů

  • Výkonové vlastnosti

    bis RC 3 Zábrana proti vloupání
    3 Trvalá funkce
    9A Těsnost proti silnému dešti
    5 Pevnost v rázu
    >0,67 Tepelná izolace (Uw ve W/m2K)
    0,78/180 Tepelná izolace (Uf ve W/m2K)
    4 Mechanická pevnost
    1 Ovládací síly
    4 Propustnost vzduchu
    1 Nosnost bezpečnostních zařízení
    1-5 Třída protihlukové ochrany
    C5/B5 Odolnost proti zatížení větrem
  • Data CAD & BIM

  • Texty nabídek

Doplňky

Objevte nyní heroal Communicator


Rozmanité a komfortní funkce heroal Communicatoru vám poskytují podporu pro optimální a časově úspornou práci. Požádejte nyní o svůj osobní přístup a využijte aktuálních dokumentů a produktových informací, novinek heroal a také osobní podpory.

Spolupracujte s námi! - Staňte se obchodním partnerem heroal

S nálepkou „powered by heroal“ prezentujete vašim zákazníkům povědomí kvality. Profitujte z cílené podpory vašeho podniku. Jako náš partner se stanete důležitou součástí značky heroal - to představuje maximální podporu pro váš obchod. Nakupujete z kompletního sortimentu heroal a ne pouze jednotlivé komponenty. Užíváte si také nejvyššího systémového zabezpečení.

  • Individuální systémová a softwarová školení
  • Prvotřídní technická podpora
  • Individuální marketingová podpora včetně „stavebnice“ webových stránek
  • Individuální péče o zákazníka poskytovaná příslušným oddělením

Máte zájem o nezávaznou konzultaci?

Vyžádat konzultaci >

Chcete si prohlédnout naši výrobu

Přihlásit se k prohlídce závodu >

Máte zájem o produktové školení u firmy heroal?

Poptat školení >