Blokový okenní systém heroal W 72 i

heroal W 72 i

Kompletní okenní systém pro každou oblast použití

Blokový okenní systém heroal W 72 i je symbolem architektonické rozmanitosti, která je dána filigránskou šířkou líce. Křídlové profily jsou k dispozici s drážkami SBN a KBN, což umožňuje flexibilní zpracování. Minimální šířka líce tohoto systému je pouhých 81 mm. heroal W 72 i kombinuje maximální podíl skla a moderní design bez viditelných křídel s vysokou tepelnou izolací. Lze jej použít mnoha způsoby, např. jako fasádní vkládací prvek. S hodnotou Uf 1,5/1,7 W/m²K a šířkou líce 87/91 mm tvoří okenní systém heroal W 72 i základ pro další stupně rozšíření. Tyto stupně rozšíření jsou heroal W 72 i (bez PU pěny - snížení hodnoty U vynecháním izolační zóny profilu a použitím jiných izolačních prvků) a heroal W 72 i UD (univerzální provedení - blokové okenní dveře s výškou prahu < 20 mm).

  • vysoká tepelná izolace s nízkou celkovou hloubkou
  • osvědčené výkonnostní charakteristiky s armaturami heroal WF a heroal WF EM
  • lze realizovat vnitřní i vnější zasklení

K dispozici jako balíček heroal plus .

    Podrobnosti o produktu

  • Výhody zpracování & podrobnosti o produktu

    Inovativní kompletní řešení pro okenní systémy heroal


    Balíček příslušenství heroal plus pro okenní systém heroal W 72 (heroal W 72 plus) je vysoce kvalitní a flexibilní řešení pro efektivní projekty výstavby oken. Díky své modulární konstrukci se heroal plus skládá z textilní sítě

    Inovativní kompletní řešení pro okenní systémy heroal


    Balíček příslušenství heroal plus pro okenní systém heroal W 72 (heroal W 72 plus) je vysoce kvalitní a flexibilní řešení pro efektivní projekty výstavby oken. Díky své modulární konstrukci se heroal plus skládá z textilní sítě heroal VS Z, systému ochrany proti pádu, integrované sítě proti hmyzu a okenního parapetu, čímž poskytuje kompletní řešení z jedné ruky pro všechny profese. Všechny komponenty jsou k dispozici jednotlivě, v různých kombinacích nebo pro dodatečnou montáž a lze je konfigurovat a objednávat v heroal Business Configurator s optimalizovaným rozhraním Orgadata Logikal. Komponenty systému přizpůsobené na míru zajišťují také maximální efektivitu a spolehlivost při výrobě a instalaci. Díky barevné a povrchové jednotnosti všech hliníkových profilů a minimu viditelných šroubových spojů splňuje heroal plus nejvyšší požadavky na design.

  • Brožury & zkušební certifikáty

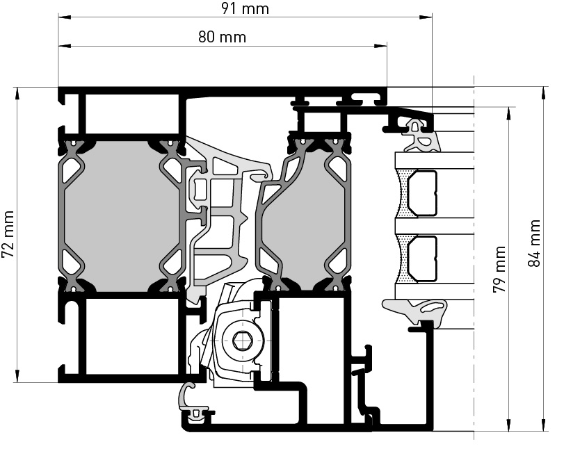
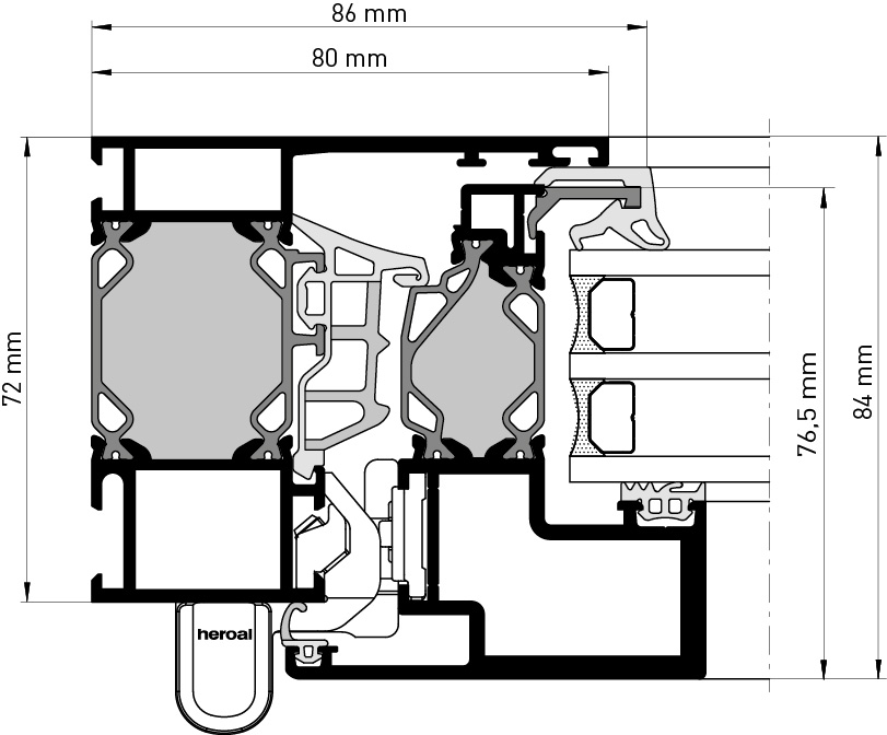
  • Rozměry & výkresy

    Stavební hloubka profilu [mm]

    Profily rámu
    72
    Profily křídel
    72
    Profily příčlí
    76,5 / 79

    Náhledová šířka profilu [mm]

    Profily rámu
    70 - 120
    Profily křídel
    verdeckt
    Kombinace rámů křídel
    77 / 81
    Profily příčlí
    114 - 244

    Varianty profilu křídla

    Drážka kování posuvné tyče [SBN]
    Drážka umělohmotného kování [KBN]

    Vlastnosti systému

    Síla skla/výplně [mm]
    48
    max. Hmotnost křídla [kg]
    300
    max. Výšky křídel [mm]
    2.400
    max. šířka křídla [mm]
    1.200

    Výkresy řezů

  • Výkonové vlastnosti

    RC 2 Zábrana proti vloupání
    2 Trvalá funkce
    9A Těsnost proti silnému dešti
    5 Pevnost v rázu
    > 0,83* Tepelná izolace (Uw ve W/m2K)
    1,5/97 Tepelná izolace (Uf ve W/m2K)
    4 Mechanická pevnost
    1 Ovládací síly
    4 Propustnost vzduchu
    1 Nosnost bezpečnostních zařízení
    1-5 Třída protihlukové ochrany
    C5/B5 Odolnost proti zatížení větrem
  • Data CAD & BIM

  • Texty nabídek

Reference heroal W 72 i

Doplňky

Objevte nyní heroal Communicator


Rozmanité a komfortní funkce heroal Communicatoru vám poskytují podporu pro optimální a časově úspornou práci. Požádejte nyní o svůj osobní přístup a využijte aktuálních dokumentů a produktových informací, novinek heroal a také osobní podpory.

Spolupracujte s námi! - Staňte se obchodním partnerem heroal

S nálepkou „powered by heroal“ prezentujete vašim zákazníkům povědomí kvality. Profitujte z cílené podpory vašeho podniku. Jako náš partner se stanete důležitou součástí značky heroal - to představuje maximální podporu pro váš obchod. Nakupujete z kompletního sortimentu heroal a ne pouze jednotlivé komponenty. Užíváte si také nejvyššího systémového zabezpečení.

  • Individuální systémová a softwarová školení
  • Prvotřídní technická podpora
  • Individuální marketingová podpora včetně „stavebnice“ webových stránek
  • Individuální péče o zákazníka poskytovaná příslušným oddělením

Máte zájem o nezávaznou konzultaci?

Vyžádat konzultaci >

Chcete si prohlédnout naši výrobu

Přihlásit se k prohlídce závodu >

Máte zájem o produktové školení u firmy heroal?

Poptat školení >