Objekttürsystem heroal D 72

heroal D 72 - Objekttürsystem

Objekttürsystem für stark frequentierte Eingangsbereiche

Das Objekttürsystem heroal D 72 bietet funktionale Vielseitigkeit mit vielen Öffnungs- und Füllungsarten. Gleichzeitig können Leistungseigenschaften des Türsystems auf das Bauvorhaben abgestimmt und Anforderungen in Bezug auf Wärmedämmung, Windlast, Luftdurchlässigkeit, Schlagregendichtheit und Einbruchhemmung nutzungsorientiert erfüllt werden. Mit dem geprüften und zertifizierten heroal System lassen sich alle gängigen Öffnungsarten inkl. geprüfter Flucht- und Rettungswege (nach DIN EN 179/1125), Automatiktüranlagen, Fingerschutztüren sowie einbruchhemmende Türen – auch mit Fluchttürfunktion – nach RC 2 und RC 3 realisieren.

  • Geprüfte Flucht - und Rettungswege nach DIN EN 179 / DIN EN 1125
  • Umfangreiche Auswahl an Öffnungsarten (Automatik -, Fingerschutz -, Gegentakt -, Halbpendel- und Stulptüren)
  • Harmonische Fassadenintegration

    Produktdetails

  • Verarbeitungsvorteile & Produktdetails

    Verarbeitung

    heroal Objekttürsysteme zeichnen sich durch höchste Flexibilität in der Verarbeitung, eine sichere und fehlertolerante Fertigung sowie reduzierte Fertigungskosten und geringe Fertigungszeiten aus. Die heroal Verbindungstechnologie mit nagel- und pressbaren Eckwinkeln sowie Verbinderschrauben und das system- und bautiefenübergreifende Konstruktionsprinzip sorgen für eine fehlertolerante und prozesssichere Fertigung. Spreizeckwinkel ermöglichen die besonders leichte Ausrichtung zweier auf Gehrung geschnittener Profile. Dank der universellen Beschlagsnut können Beschläge unterschiedlicher Hersteller gewählt werden. heroal D 72 kombiniert durch die flexiblen Profile mit unterschiedlichen Ansichtsbreiten und den Designlinien heroal D 72 RL und heroal D 72 CL vielfältige Verarbeitungsoptionen in einem System. Die durchgängige Systemlogik und die Verwendung derselben Werkzeuge bieten maximale Fertigungssicherheit. Zugleich können individuelle Kundenwünsche erfüllt und durch die Verwendung gleicher Bauteile Lagerhaltungskosten eingespart werden. Die große Auswahl aus ca. 160 Türabschlussvarianten ermöglicht Türabschlüsse für alle Anforderungen und damit die einfache Anpassung der Leistungseigenschaften an das Bauvorhaben. Mit dem geprüften System heroal D 72 für Flucht- und Rettungswege lassen sich 1- und 2-flügelige Voll- und Teilpaniktüren oder Fluchttüren nach DIN 179/1125 realisieren. Die Profilbearbeitung aller Türsysteme des Systems heroal D 72 kann mit der Universal-Stanze erfolgen. Fertigungszeiten werden deutlich verkürzt und Rüstkosten reduziert.

    Fähigkeit zur Freigabe

    Das Türsystem heroal D 72 bietet geprüfte Lösungen für Flucht- und Rettungswege – mit langlebigen Beschlägen, großen Fertigungsgrößen und CE-Kennzeichnung gemäß EN 14351-1. Flucht- und Paniktüren erfordern ein abgestimmtes Zusammenspiel von Rahmen, Flügel, Beschlägen und Einbausituation. heroal setzt auf passgenaue Profile, optimierte Spaltmaße (5/11 mm) und geprüfte Beschlagvarianten zur Gewährleistung einer dauerhaften Zwängungsfreiheit.

    Nachhaltigkeit

    Türsysteme von heroal bestehen aus recyceltem Aluminium, sind äußerst langlebig und tragen positiv zur Energieeffizienz eines Gebäudes bei. Durch den modularen Systemaufbau und verschiedene Dämmvarianten lassen sich die Wärmedämmwerte einfach und flexibel an das jeweilige Bauvorhaben anpassen. Mit Uf-Werten von 1,7 W/m2K bieten die Profile des Türsystems heroal D 72 eine hohe Flexibilität hinsichtlich technischer Anforderungen. In Kombination mit entsprechendem Glas und Füllungen können Ud-Werte von bis zu 0,89 W/m2K erreicht werden. Neben ihrer Energieeffizienz überzeugen heroal Türsysteme auch durch ihre umfassende Nachhaltigkeit über den gesamten Produktlebenszyklus hinweg. Der Einsatz umweltsicherer, gesunder und wiederverwertbarer Materialien wird durch die Cradle to Cradle Certified®-Zertifizierung bestätigt. Zusätzlich unterstützen Umweltproduktdeklarationen (EPDs) sowie der optionale Einsatz von heroal Low Carbon Aluminium die Erfüllung anerkannter Nachhaltigkeitsstandards wie DGNB, LEED und BREEAM.

    Komfort

    Die heroal D 72 Objekttür ermöglicht das freie Passieren des Eingangselements mithilfe der Nullschwellenlösung nach DIN 18040 - 1 und DIN 18040 - 2. Um Feuchteschäden im Innenraum zu vermeiden, kann das Türsystem heroal D 72 mit dem Drainagesystem heroal DS kombiniert werden, das anfallendes Oberflächenwasser rückstaufrei ableitet. Das Türsystem heroal D 72 ist bereits im Standard einbruchhemmend und ist bis zur Widerstandsklasse RC 3 geprüft. Selbst- und mehrfachverriegelnde Beschlagvarianten erhöhen die Sicherheit. Der Schallschutz bis Klasse 3 trägt zu einer gesunden Wohnumgebung bei. Smarte Zugangslösungen wie Keyless Entry erhöhen den Komfort. Zugleich können heroal Türsysteme mit elektrischen Schlössern versehen und in gängige Smart-Home-Systeme integriert werden.

    Design

    Das Türsystem heroal D 72 bietet vielfältige Designoptionen und maximale Gestaltungsfreiheit. Die hochwetterresistente heroal hwr-Pulverbeschichtung sorgt für perfekte Farbharmonie mit den heroal Fenster-, Schiebetür-, Rollladen-, Fassaden-, Sonnen- und Überdachungssystemen – wählbar in über 500 RAL-, DB-, VEKA-Farbtönen mit verschiedenen Glanzgraden und Strukturen. Metallisch-reflektierende Optiken lassen sich mit einer Eloxalbeschichtung kreieren. Ergänzt wird das Angebot durch die Oberflächenveredelung heroal SD mit Holz-, Rost- oder Betonoptiken sowie die exklusiven Les Couleurs® Le Corbusier® Farben. Die heroal Les Couleurs® Le Corbusier® Haustür in den branchenexklusiven Farben von Les Couleurs® Le Corbusier® verleiht jedem Eingangsbereich eine natürliche und architektonische Ästhetik. Alle Öffnungsarten und vielfältige Bauformen – inklusive Oberlichtern und Seitenteilen – lassen sich realisieren. Sonderformen wie Rund- und Korbbögen ermöglicht der heroal Profilbiege- und Abkantservice. Die Türsysteme sind kombinierbar mit Einsatzfüllungen, flügelüberdeckenden Aufsatzfüllungen (einseitig oder beidseitig), Glaseinsätzen und Motivplatten mit Echtholz- oder Keramikfüllungen verschiedener Hersteller. Die moderne heroal Haustürfüllung verfügt über eine integrierte Griffleiste in drei Längen, optional mit LED-Beleuchtung. Dank patentierter, reversibler Füllungsbefestigung kann das Design auch nachträglich geändert werden. Der heroal Designdrücker sowie Türbänder (Rollen-, Aufsatz- oder verdeckt liegende Türbänder) aus der Beschlagreihe heroal DF in verschiedenen Farben vervollständigen das hochwertige Designkonzept.

    Systemkompatibilität

    heroal Türsysteme lassen sich ideal mit heroal Fenster-, Schiebe- und Hebe-Schiebe-, Fassaden-, sowie Überdachungssystemen kombinieren für einfache Montageprozesse und harmonische Ansichten. Das Objekttürsystem heroal D 72 erfüllt mit seiner vielfältigen Profilgestaltung eine maßgebliche Grundlage für die Integration in das Fassadensystem heroal C 50. Für die unterschiedlichen energetischen und transparenten Anforderungen an Gebäude bietet der modulare Aufbau der heroal C 50 Fassade die optimale Lösung. Gepaart mit den integrierbaren Fenster- und Türsystemen von heroal ermöglicht es Architekten und Verarbeitern eine vielfältige Objektgestaltung.

  • Prospekte & Prüfzeugnisse

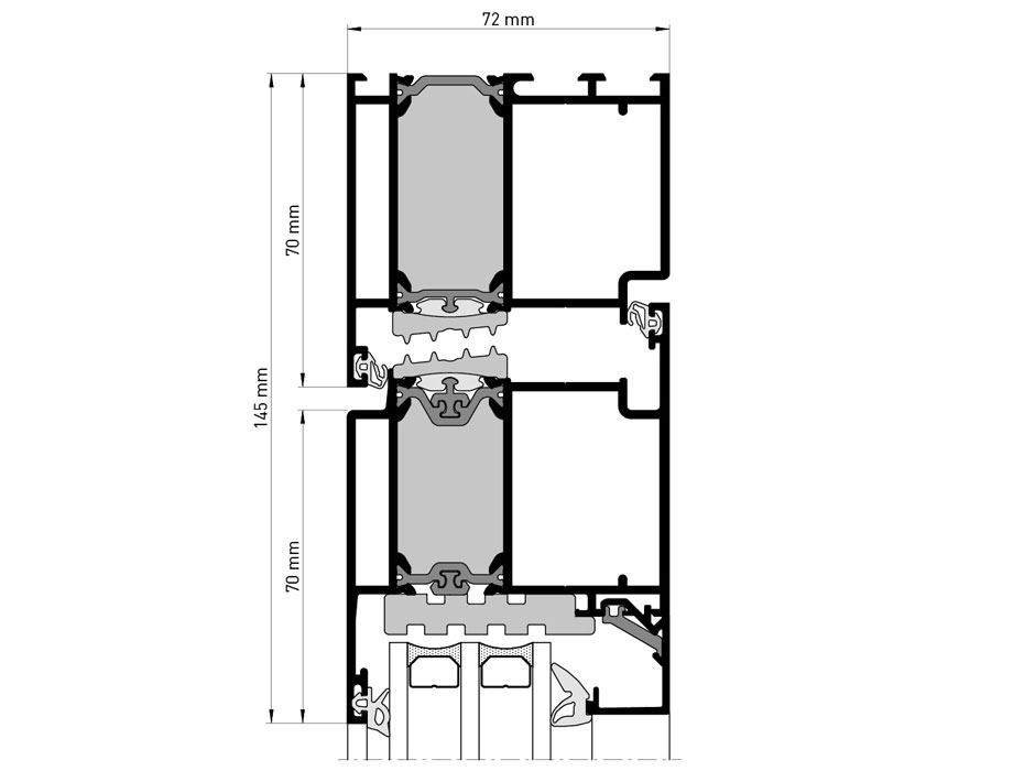
  • Maße & Zeichnungen

    Profilbautiefe [mm]

    Rahmenprofile
    72
    Flügelprofile
    65 - 72
    Sprossenprofile
    72

    Profilansichtsbreite [mm]

    Rahmenprofile
    60 - 250
    Flügelprofile
    56 - 124
    Sprossenprofile
    70 - 254

    Systemeigenschaften

    Glas-/Füllungsstärke [mm]
    68/72
    max. Flügelgewichte [kg]
    180
    max. Flügelbreiten [mm]
    1.400
    max. Flügelhöhen [mm]
    3.000
    Min. Ansichtsbreite Rahmen-/Flügelprofil
    145

    Schnittzeichnungen

  • Leistungseigenschaften

    RC 3 Einbruchhemmung
    8 Dauerfunktion
    E900 Schlagregendichtheit
    4 Stoßfestigkeit
    ≥ 0,89 Wärmedämmung [Uw in W/m2K] / Profilbreite [mm]
    ≥ 1,7 Wärmedämmung [Uf in W/m2K]/Profilbreite [mm]
    3 Mechanische Festigkeit
    2 Bedienkräfte
    4 Luftdurchlässigkeit
    1 Tragfähigkeit von Sicherheitseinrichtungen
    Rw=43 dB Schallschutzklasse
    C4 Windlastwiderstand
  • CAD & BIM Daten

  • Ausschreibungstexte



Referenzen heroal D 72 - Objekttürsystem

Extras

Entdecken Sie jetzt den heroal Communicator



Die vielfältigen und komfortablen Funktionen des heroal Communicators unterstützen Ihre Arbeit optimal und zeitsparend. Beantragen Sie jetzt Ihren persönlichen Zugang und profitieren Sie von aktuellsten Dokumenten und Produktinformationen, Neuigkeiten rund um heroal sowie persönlichem Support.

Ihre Vorteile als heroal Fachpartner

Mit dem Label powered by heroal demonstrieren Sie Ihren Kunden Qualitätsbewusstsein und höchste Verlässlichkeit. Als unser Partner werden Sie zu einem wichtigen Bestandteil der Marke heroal – das bedeutet für Sie maximalen Rückhalt und zielgerichtete Unterstützung. Schneller, erstklassiger Support und qualitätsführende Systeme von heroal bieten Ihnen Verarbeitungsvorteile - sichern Sie sich Ihren Vorsprung!

  • Individuelle System- und Softwareschulungen
  • Erstklassiger technischer Support
  • Individuelle Marketingunterstützung inkl. Website-Baukasten
  • Persönliche Betreuung durch den zuständigen Außendienst

Sie wünschen eine unverbindliche Produktberatung?

Produktberatung anfordern >

Sie möchten einen Einblick in unsere Produktion?

Zur Werksführung anmelden >

Sie interessieren sich für eine Schulung bei heroal?

Schulung anfragen >