Fenstersystem heroal W 77 i
heroal W 77 i mit dem Fensterbeschlag heroal WF EM

heroal W 77 i

Das Blockfenstersystem von heute und morgen

Das Blockfenstersystem heroal W 77 i steht für architektonische Gestaltungsvielfalt, getrieben durch filigrane Ansichtsbreiten. Flügelprofile sind mit SBN- und KBN-Nut erhältlich und ermöglichen so eine flexible Verarbeitung. Die mindeste Ansichtsbreite beträgt bei diesem System nur 81 mm. Das Blockfenstersystem heroal W 77 i bietet einen maximalen Glasanteil, hohe Wärmedämmung und elegantes Design ohne sichtbaren Flügel. Es ist vielseitig einsetzbar, z. B. als Fassadeneinsatzelement. Mit einem Uw- Wert von 1,0 W/m²K bei einer Ansichtsbreite von 101 mm bildet das System heroal W 77 i die Basis für eine weitere Ausbaustufe. Sonderrahmenprofile ermöglichen eine innen und außen flächenbündige Optik vom Flügel zum Rahmen – für eine elegante Optik und die harmonische Integration in architektonisch anspruchsvolle Raumkonzepte. Diese Systemausbaustufe ist heroal W 77 i UD (Universal Design) für Blockfenstertüren mit Schwellenhöhe < 20 mm.

  • Hohe Wärmedämmung bei geringer Bautiefe
  • Nachgewiesene Leistungseigenschaften mit heroal WF und heroal WF EM Beschlägen
  • Hoher Glasanteil, schmale Profilansichtsbreiten

Als heroal plus Paket verfügbar.

    Produktdetails

  • Verarbeitungsvorteile & Produktdetails

    Innovative Komplettlösung für heroal Fenstersysteme


    Das Zubehörpaket heroal plus für das Fenstersystem heroal W 77 (heroal W 77 plus) ist eine hochwertige und flexible Lösung für effiziente Fensterbauprojekte. Modular aufgebaut besteht heroal plus aus einem heroal VS Z Textilscreen

    Innovative Komplettlösung für heroal Fenstersysteme


    Das Zubehörpaket heroal plus für das Fenstersystem heroal W 77 (heroal W 77 plus) ist eine hochwertige und flexible Lösung für effiziente Fensterbauprojekte. Modular aufgebaut besteht heroal plus aus einem heroal VS Z Textilscreen, einer Absturzsicherung, einem integriertem Insektenschutzrollo sowie einer Fensterbank und liefert damit eine gewerkeübergreifende Komplettlösung aus einer Hand. Alle Komponenten sind einzeln, in unterschiedlichen Kombinationen oder für den nachträglichen Einbau erhältlich und können im heroal Business Konfigurator mit optimierter Orgadata Logikal Schnittstelle konfiguriert und bestellt werden. Für ein weiteres Plus sorgen höchste Effizienz und Sicherheit in Fertigung und Montage dank der auf Maß zugeschnittenen Systembauteile. Durch die Farb- und Oberflächengleichheit sämtlicher Aluminiumprofile sowie ein Minimum an sichtbaren Verschraubungen erfüllt heroal plus höchste Designanforderungen.

  • Prospekte & Prüfzeugnisse

    Prüfzeugnisse
    Prüfzeugnis
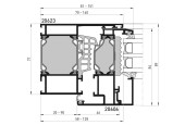
  • Maße & Zeichnungen

    Profilbautiefe [mm]

    Rahmenprofile
    77
    Flügelprofile
    84
    Sprossenprofile
    77

    Profilansichtsbreite [mm]

    Rahmenprofile
    70 - 140
    Flügelprofile
    11
    Rahmen-Flügelkombination
    81
    Sprossenprofile
    94 - 194

    Flügelprofilvarianten

    Schubstangenbeschlagnut [SBN]
    Kunststoffbeschlagnut [KBN]

    Systemeigenschaften

    Glas-/Füllungsstärke [mm]
    64
    max. Flügelgewichte [kg]
    300
    max. Flügelhöhen [mm]
    2.400
    max. Flügelbreiten [mm]
    1.200
    Fassadenintegration
    heroal C 50

    Schnittzeichnungen

  • Leistungseigenschaften

    RC 2 Einbruchhemmung
    3 Dauerfunktion
    9A Schlagregendichtheit
    5 Stoßfestigkeit
    > 0,72 Wärmedämmung [Uw in W/m2K] / Profilbreite [mm]
    1,0/101 Wärmedämmung [Uf in W/m2K]/Profilbreite [mm]
    4 Mechanische Festigkeit
    1 Bedienkräfte
    4 Luftdurchlässigkeit
    1 Tragfähigkeit von Sicherheitseinrichtungen
    1-5 Schallschutzklasse
    C5/B5 Windlastwiderstand
  • CAD & BIM Daten

  • Ausschreibungstexte



Extras

Entdecken Sie jetzt den heroal Communicator



Die vielfältigen und komfortablen Funktionen des heroal Communicators unterstützen Ihre Arbeit optimal und zeitsparend. Beantragen Sie jetzt Ihren persönlichen Zugang und profitieren Sie von aktuellsten Dokumenten und Produktinformationen, Neuigkeiten rund um heroal sowie persönlichem Support.

Ihre Vorteile als heroal Fachpartner

Mit dem Label powered by heroal demonstrieren Sie Ihren Kunden Qualitätsbewusstsein und höchste Verlässlichkeit. Als unser Partner werden Sie zu einem wichtigen Bestandteil der Marke heroal – das bedeutet für Sie maximalen Rückhalt und zielgerichtete Unterstützung. Schneller, erstklassiger Support und qualitätsführende Systeme von heroal bieten Ihnen Verarbeitungsvorteile - sichern Sie sich Ihren Vorsprung!

  • Individuelle System- und Softwareschulungen
  • Erstklassiger technischer Support
  • Individuelle Marketingunterstützung inkl. Website-Baukasten
  • Persönliche Betreuung durch den zuständigen Außendienst

Sie wünschen eine unverbindliche Produktberatung?

Produktberatung anfordern >

Sie möchten einen Einblick in unsere Produktion?

Zur Werksführung anmelden >

Sie interessieren sich für eine Schulung bei heroal?

Schulung anfragen >