Fenstersystem heroal W 77 HI
Fenstersystem heroal W 77 in der Einbruchschutzklasse RC 4
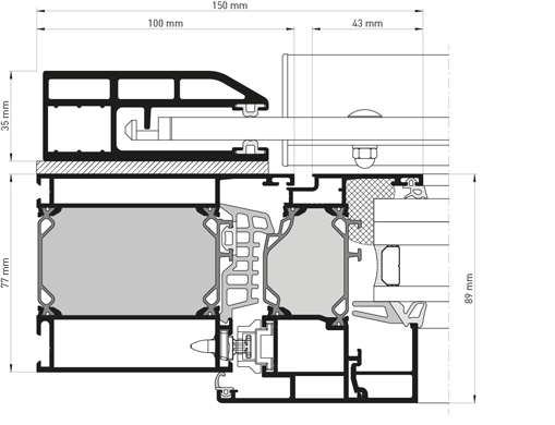
heroal W 77 HI mit Fensterbeschlag heroal WF EM

heroal W 77 HI

Das Fenstersystem von heute und morgen

Durch die intelligente Kombination von Geometrie und Material erzielt das neue Fenstersystem heroal W 77 bei einer Bautiefe von lediglich 77 mm einen Uf- Wert von 0,95 W/m2K (Ansichtsbreite 120 mm) auf Passivhausniveau. Durch diese Entwicklung ist es heroal gelungen, das thermisch getrennte Aluminiumfenster langfristig nicht nur auf die Anforderungen von heute, EnEV 2016, sondern auch auf die Forderungen von morgen „nearly zero-energy buildings“ auszurichten.

    Produktdetails

  • Prospekte & Prüfzeugnisse

  • Maße & Zeichnungen

    Profilbautiefe [mm]

    Rahmenprofile
    77
    Flügelprofile
    89
    Sprossenprofile
    77

    Profilansichtsbreite [mm]

    Rahmenprofile
    50 - 250
    Flügelprofile
    33 - 67
    Rahmen-Flügelkombination
    90
    Sprossenprofile
    74 - 254

    Flügelprofilvarianten

    Schubstangenbeschlagnut [SBN]
    Kunststoffbeschlagnut [KBN]

    Systemeigenschaften

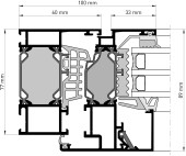
    Glas-/Füllungsstärke [mm]
    66
    max. Flügelgewichte [kg]
    300
    max. Flügelhöhen [mm]
    2.800
    max. Flügelbreiten [mm]
    1.600

    Schnittzeichnungen

  • Leistungseigenschaften

    RC 3 Einbruchhemmung
    3 Dauerfunktion
    9A Schlagregendichtheit
    5 Stoßfestigkeit
    > 0,72 Wärmedämmung [Uw in W/m2K] / Profilbreite [mm]
    0,95/120 Wärmedämmung [Uf in W/m2K]/Profilbreite [mm]
    4 Mechanische Festigkeit
    1 Bedienkräfte
    4 Luftdurchlässigkeit
    1 Tragfähigkeit von Sicherheitseinrichtungen
    1-5 Schallschutzklasse
    C5/B5 Windlastwiderstand

    * Uw -Wert nach DIN EN ISO 10077-1, ermittlet an einer Elementgröße 1.230 x 1.480 mm, Standard-Profilansichtsbreite

    !) Anwendungsbezogene Sonderfreigaben bei Elementübergrößen durch heroal

  • CAD & BIM Daten

  • Ausschreibungstexte



Referenzen heroal W 77 HI

Extras

Entdecken Sie jetzt den heroal Communicator



Die vielfältigen und komfortablen Funktionen des heroal Communicators unterstützen Ihre Arbeit optimal und zeitsparend. Beantragen Sie jetzt Ihren persönlichen Zugang und profitieren Sie von aktuellsten Dokumenten und Produktinformationen, Neuigkeiten rund um heroal sowie persönlichem Support.

Ihre Vorteile als heroal Fachpartner

Mit dem Label powered by heroal demonstrieren Sie Ihren Kunden Qualitätsbewusstsein und höchste Verlässlichkeit. Als unser Partner werden Sie zu einem wichtigen Bestandteil der Marke heroal – das bedeutet für Sie maximalen Rückhalt und zielgerichtete Unterstützung. Schneller, erstklassiger Support und qualitätsführende Systeme von heroal bieten Ihnen Verarbeitungsvorteile - sichern Sie sich Ihren Vorsprung!

  • Individuelle System- und Softwareschulungen
  • Erstklassiger technischer Support
  • Individuelle Marketingunterstützung inkl. Website-Baukasten
  • Persönliche Betreuung durch den zuständigen Außendienst

Sie wünschen eine unverbindliche Produktberatung?

Produktberatung anfordern >

Sie möchten einen Einblick in unsere Produktion?

Zur Werksführung anmelden >

Sie interessieren sich für eine Schulung bei heroal?

Schulung anfragen >