Blockfenstersystem heroal W 72 i

heroal W 72 i

Blockfenstersystem für jeden Einsatzbereich

Das Blockfenstersystem heroal W 72 i verbindet architektonische Gestaltungsvielfalt mit filigranen Ansichtsbreiten. Flügelprofile sind nicht nur mit SBN- und KBN-Nut, sondern auch als Innen- und Außenverglasung erhältlich und ermöglichen so eine flexible Verarbeitung und Montage. Die mindeste Ansichtsbreite beträgt bei diesem System gerade einmal 81 mm. heroal W 72 i kombiniert einen maximalen Glasanteil und modernes Design ohne sichtbaren Flügel mit einer hohen Wärmedämmung. Es ist vielseitig einsetzbar, z. B. als Fassadeneinsatzelement (schwimmendes Fenster). Mit einem Uf-Wert von 1,5/1,7 W/m²K bei einer Ansichtsbreite von 87/91 mm bildet das Fenstersystem heroal W 72 i die Basis für weitere Ausbaustufen. Diese Ausbaustufen sind heroal W 72 i (ohne PU-Schaum - Reduzierung des U-Wertes durch Wegfall der Profildämmzone und Einsatz anderer Dämmartikel) und heroal W 72 i UD (Universal Design - Blockfenstertüren mit Schwellenhöhe < 20 mm). Die Kombination mit verdeckt liegenden Beschlägen verleiht dem System ein elegantes Design. Sonderrahmenprofile ermöglichen eine innen und außen flächenbündige Optik vom Flügel zum Rahmen – für eine elegante Optik und die harmonische Integration in architektonisch anspruchsvolle Raumkonzepte. heroal W 72 ist auch als Zubehörpaket heroal plus erhältlich.

  • Hohe Wärmedämmung bei geringer Bautiefe
  • Nachgewiesene Leistungseigenschaften mit heroal WF und heroal WF EM Beschlägen
  • Innen- und Außenverglasung realisierbar

Als heroal plus Paket verfügbar.

    Produktdetails

  • Verarbeitungsvorteile & Produktdetails

    Innovative Komplettlösung für heroal Fenstersysteme


    Das Zubehörpaket heroal plus für das Fenstersystem heroal W 72 (heroal W 72 plus) ist eine hochwertige und flexible Lösung für effiziente Fensterbauprojekte. Modular aufgebaut besteht heroal plus aus einem heroal VS Z Textilscreen

    Innovative Komplettlösung für heroal Fenstersysteme


    Das Zubehörpaket heroal plus für das Fenstersystem heroal W 72 (heroal W 72 plus) ist eine hochwertige und flexible Lösung für effiziente Fensterbauprojekte. Modular aufgebaut besteht heroal plus aus einem heroal VS Z Textilscreen, einer Absturzsicherung, einem integriertem Insektenschutzrollo sowie einer Fensterbank und liefert damit eine gewerkeübergreifende Komplettlösung aus einer Hand. Alle Komponenten sind einzeln, in unterschiedlichen Kombinationen oder für den nachträglichen Einbau erhältlich und können im heroal Business Konfigurator mit optimierter Orgadata Logikal Schnittstelle konfiguriert und bestellt werden. Für ein weiteres Plus sorgen höchste Effizienz und Sicherheit in Fertigung und Montage dank der auf Maß zugeschnittenen Systembauteile. Durch die Farb- und Oberflächengleichheit sämtlicher Aluminiumprofile sowie ein Minimum an sichtbaren Verschraubungen erfüllt heroal plus höchste Designanforderungen.

  • Prospekte & Prüfzeugnisse

  • Maße & Zeichnungen

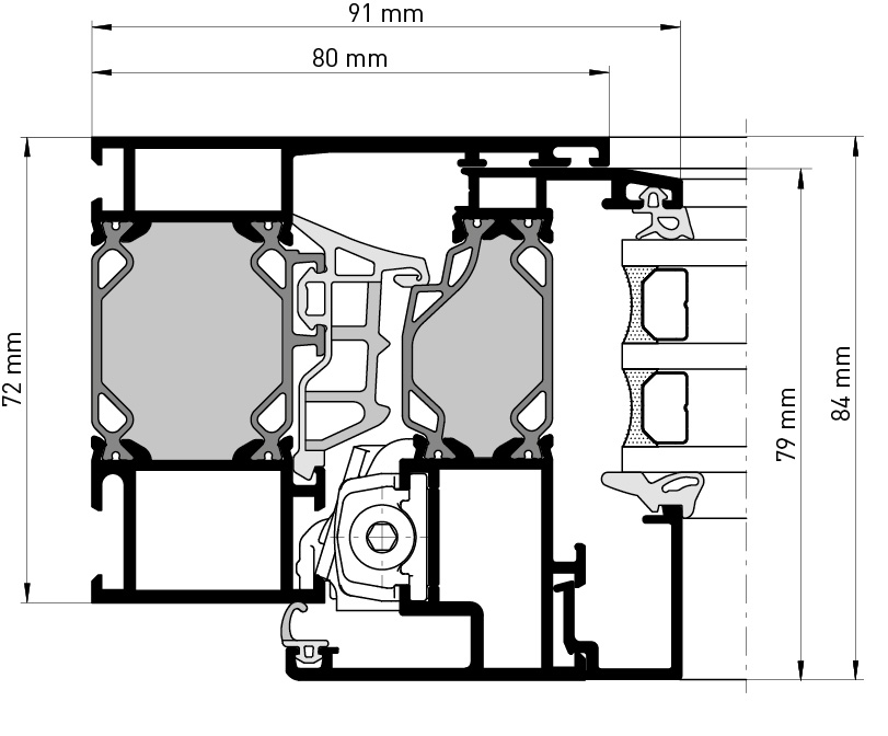
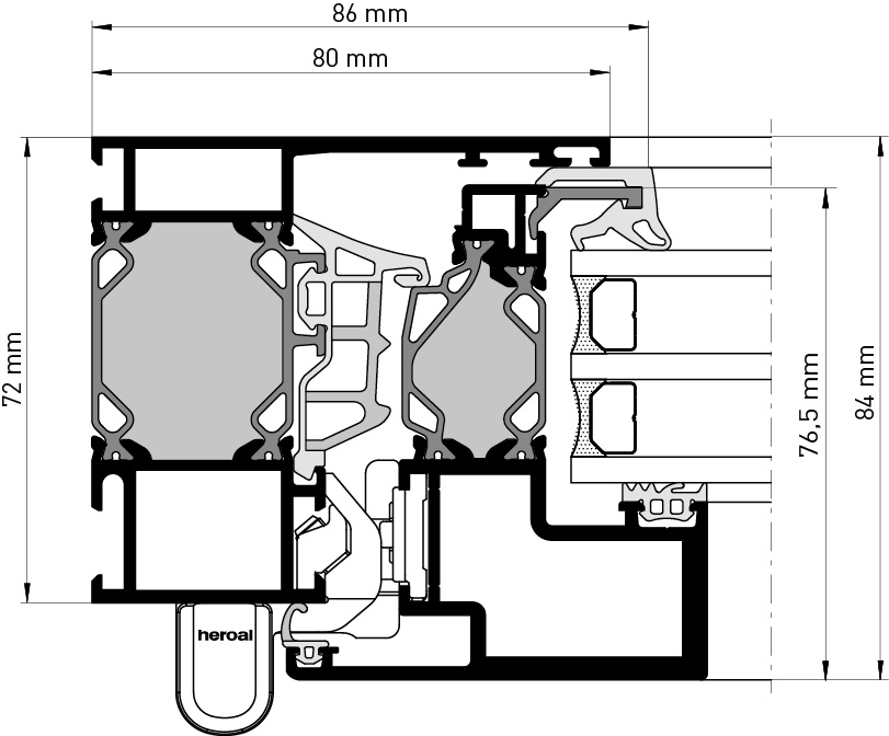
    Profilbautiefe [mm]

    Rahmenprofile
    72
    Flügelprofile
    72
    Sprossenprofile
    76,5 / 79

    Profilansichtsbreite [mm]

    Rahmenprofile
    70 - 120
    Flügelprofile
    verdeckt
    Rahmen-Flügelkombination
    77 / 81
    Sprossenprofile
    114 - 244

    Flügelprofilvarianten

    Schubstangenbeschlagnut [SBN]
    Kunststoffbeschlagnut [KBN]

    Systemeigenschaften

    Glas-/Füllungsstärke [mm]
    48
    max. Flügelgewichte [kg]
    300
    max. Flügelhöhen [mm]
    2.400
    max. Flügelbreiten [mm]
    1.200

    Schnittzeichnungen

  • Leistungseigenschaften

    RC 2 Einbruchhemmung
    2 Dauerfunktion
    9A Schlagregendichtheit
    5 Stoßfestigkeit
    > 0,83* Wärmedämmung [Uw in W/m2K] / Profilbreite [mm]
    1,5/97 Wärmedämmung [Uf in W/m2K]/Profilbreite [mm]
    4 Mechanische Festigkeit
    1 Bedienkräfte
    4 Luftdurchlässigkeit
    1 Tragfähigkeit von Sicherheitseinrichtungen
    1-5 Schallschutzklasse
    C5/B5 Windlastwiderstand
  • CAD & BIM Daten

  • Ausschreibungstexte



Referenzen heroal W 72 i

Extras

Entdecken Sie jetzt den heroal Communicator



Die vielfältigen und komfortablen Funktionen des heroal Communicators unterstützen Ihre Arbeit optimal und zeitsparend. Beantragen Sie jetzt Ihren persönlichen Zugang und profitieren Sie von aktuellsten Dokumenten und Produktinformationen, Neuigkeiten rund um heroal sowie persönlichem Support.

Ihre Vorteile als heroal Fachpartner

Mit dem Label powered by heroal demonstrieren Sie Ihren Kunden Qualitätsbewusstsein und höchste Verlässlichkeit. Als unser Partner werden Sie zu einem wichtigen Bestandteil der Marke heroal – das bedeutet für Sie maximalen Rückhalt und zielgerichtete Unterstützung. Schneller, erstklassiger Support und qualitätsführende Systeme von heroal bieten Ihnen Verarbeitungsvorteile - sichern Sie sich Ihren Vorsprung!

  • Individuelle System- und Softwareschulungen
  • Erstklassiger technischer Support
  • Individuelle Marketingunterstützung inkl. Website-Baukasten
  • Persönliche Betreuung durch den zuständigen Außendienst

Sie wünschen eine unverbindliche Produktberatung?

Produktberatung anfordern >

Sie möchten einen Einblick in unsere Produktion?

Zur Werksführung anmelden >

Sie interessieren sich für eine Schulung bei heroal?

Schulung anfragen >